Resolução CONTRAN Nº 952 DE 28/03/2022


 Publicado no DOU em 1 abr 2022


Estabelece as especificações técnicas para a fabricação e a instalação de para-choques traseiros nos veículos de fabricação nacional ou importados das categorias N2, N3, O3 e O4.


Sistemas e Simuladores Legisweb

O Conselho Nacional de Trânsito (CONTRAN), no uso da competência que lhe confere o art. 12, da Lei nº 9.503, de 23 de setembro de 1997 , que institui o Código de Trânsito Brasileiro (CTB), com base no que consta nos autos do processo administrativo nº 50000.035105/2021-91,

Resolve:

Art. 1º Esta Resolução estabelece as especificações técnicas para a fabricação e a instalação de para-choques traseiros nos veículos de fabricação nacional ou importados das categorias N2, N3, O3 e O4.

Parágrafo único. Os requisitos técnicos e os métodos de ensaios dos parachoques traseiros estão definidos no Anexo I desta Resolução.

Art. 2º Para fins desta Resolução, serão utilizadas as classificações a seguir:

I - Categoria N: veículo automotor que contém pelo menos quatro rodas, projetado e construído para o transporte de cargas, sendo:

a) Categoria N2: veículos projetados e construídos para o transporte de cargas e que contenham massa máxima superior a 3,5 t e não superior a 12 t; e

b) Categoria N3: veículos projetados e construídos para o transporte de cargas e que contenham massa máxima superior a 12 t; e

II - Categoria O: reboques e semirreboques, sendo:

a) Categoria O3: reboques e semirreboques com massa máxima superior a 3,5 t e não superior a 10 t; e

b) Categoria O4: reboques e semirreboques com massa máxima superior a 10 t.

Art. 3º Aplica-se o disposto nesta Resolução aos veículos de que trata o art. 1º fabricados ou importados a partir de 1º de janeiro de 2017.

§ 1º Os veículos de que trata esta Resolução cujas quaisquer características forem alteradas e que for exigida a realização de inspeção de segurança veicular para emissão do Certificado de Segurança Veicular (CSV) também devem atender às especificações constantes do Anexo I desta Resolução.

§ 2º Os demais veículos em circulação de que trata esta Resolução devem atender as especificações constantes do Anexo I, conforme cronograma a seguir:

ALGARISMO FINAL DA PLACA  PRAZO FINAL PARA ADEQUAÇÃO 
1 e 2   Até 31.12.2020 
3 e 4   Até 31.12.2021 
5 e 6   Até 31.12.2022 
7 e 8   Até 31.12.2023 
9 e 0   Até 31.12.2024

Art. 4º Para os efeitos de aplicação desta Resolução, define-se:

I - balanço traseiro: distância da extremidade traseira até o centro do último eixo do veículo;

II - carga autoportante: capacidade de automanutenção estrutural de determinado componente quando submetida a carregamento do peso próprio mais carga líquida;

III - chassi: parte do veículo constituída dos componentes necessários ao seu deslocamento e que suporta a carroceria;

IV - conjunto de ensaio: conjunto constituído do para-choque e seus elementos de fixação;

V - dispositivo de ensaio: estrutura rígida à qual é fixado o conjunto de ensaio para a aplicação das forças e medição das deformações;

VI - elemento horizontal: perfil do para-choque que receberá os esforços P1, P2 e P3 estabelecidos no ensaio previsto nesta Resolução;

VII - equipamento veicular (carroceria): implemento rodoviário específico, incorporado a veículo automotor incompleto, seja chassi de caminhão ou rebocado incompleto (base), construído para complementá-lo, permitindo assim sua funcionalidade de transporte de cargas;

VIII - estrutura rígida: estrutura cuja deformação máxima seja inferior a 1% em relação a deformação máxima permitida no ensaio do para-choque;

IX - extremidade do veículo: plano vertical perpendicular ao plano longitudinal de simetria (do veículo) e que tangenciam a dianteira e traseira do veículo, respectivamente, desconsiderando os dispositivos mencionados em Resolução do CONTRAN que estabelece os limites de pesos e dimensões para veículos;

X - família de para-choques: grupo de para-choques construídos de acordo com o mesmo projeto, variando na altura das colunas de fixação submetidos a um mesmo procedimento de ensaio, considerando as colunas com maior dimensão do ponto de fixação ao elemento horizontal, conforme mostrado na figura 1 a seguir;

Figura 1 - Família de para-choques

XI - longarina: elemento estrutural principal do quadro do chassi ou da carroceria, posicionado longitudinalmente no veículo;

XII - para-choque traseiro: dispositivo de proteção, constituído de uma ou mais travessas e elementos de fixação para montagem, fixado às longarinas ou ao elemento que desempenha as funções destas e destinado a atenuar as lesões corporais e a reduzir os danos materiais consequentes de colisão envolvendo a traseira deste veículo;

XIII - para-choque removível: para-choque cuja fixação seja resistente aos ensaios estabelecidos nesta Resolução, com a possibilidade de ser retirado do veículo, quando este se encontra em operações específicas em que, se instalado, venha a prejudicar o correto andamento destas operações;

XIV - para-choque retrátil: dispositivo de proteção equipado com sistema de articulação que permite variar a distância ao solo, girando no sentido contrário à marcha do veículo, quando este se desloca para frente, em situação transitória, devendo voltar à posição original, sem interferência do operador, assim que o obstáculo seja transposto;

XV - para-choque traseiro fixo: dispositivo de proteção, constituído de uma travessa e elementos de fixação para montagem, destinado a atenuar as lesões corporais e a reduzir os danos materiais consequentes de colisão envolvendo a traseira deste veículo; e

XVI - placa de contato: elemento de contato posicionado entre o dispositivo aplicador de força e o elemento horizontal do para-choque, com a função de distribuir de forma padronizada a força em torno de seu ponto de aplicação.

Art. 5º Estão isentos da instalação do para-choque traseiro os seguintes veículos:

I - inacabados ou incompletos;

II - caminhões-tratores;

III - produzidos especialmente para cargas autoportantes e veículos muito longos que necessitem de autorização especial de trânsito (AET);

IV - aqueles nos quais a aplicação do para-choque traseiro especificado nesta Resolução seja incompatível com a sua utilização;

V - veículos completos da categoria N2 e N3 que possuam para-choque traseiro incorporado ao projeto original do fabricante do veículo automotor;

VI - de uso bélico;

VII - de coleção;

VIII - exclusivos para uso fora de estrada;

IX - destinados à exportação; e

X - rebocados destinados ao transporte de cargas indivisíveis (carrega-tudo).

§ 1º No caso previsto no inciso IV, a estrutura que substitui o para-choque deverá atender os esforços estabelecidos nos ensaios descritos no Item 4 do Anexo I, comprovados por meio de relatório de ensaio, e ter altura máxima do solo de 450 mm.

§ 2º Os fabricantes, importadores e encarroçadores dos veículos ou equipamentos veiculares que se enquadram no inciso IV deverão fazer constar nas notas fiscais a expressão "ISENTO DE PARA-CHOQUE TRASEIRO", conforme Resolução do CONTRAN.

§ 3º A isenção de para-choque traseiro nos veículos ou equipamentos veiculares que se enquadram no inciso IV deverá constar no campo das observações do Certificado de Registro e Licenciamento em meio digital (CRLV-e) do veículo.

§ 4º Os tipos de veículos ou equipamentos veiculares que se enquadram no inciso IV são aqueles definidos no Anexo II desta Resolução.

§ 5º Compete ao órgão máximo executivo de trânsito da União atualizar o Anexo II, a qualquer tempo.

Art. 6º Compete à empresa responsável pela complementação dos veículos inacabados ou incompletos o atendimento aos requisitos constantes desta Resolução.

Art. 7º Os veículos cuja distância da face traseira do pneu até a extremidade máxima traseira de sua estrutura seja igual ou inferior a 400 mm estão isentos dos requisitos de para-choque e deverão portar um perfil horizontal para fixação da faixa retrorrefletiva com, no mínimo, 100 mm de altura e, no mínimo, 1600 mm de comprimento, centralizado em relação ao eixo longitudinal do veículo, cuja altura da borda inferior do elemento horizontal em relação ao plano de apoio das rodas seja de, no máximo, 550 mm, medida com o veículo com a massa em ordem de marcha, conforme mostrado na figura 2 a seguir.

Figura 2 - Dimensões do perfil horizontal

§ 1º O disposto neste artigo não se aplica aos veículos enquadrados no art. 5º.

§ 2º Os veículos enquadrados no caput devem atender ao que dispõem os §§ 2º e 3º do art. 5º.

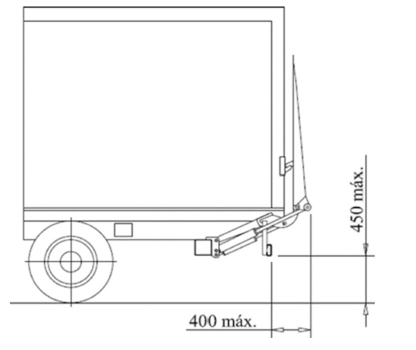
Art. 8º Nos veículos com betoneira, plataforma autossocorro, basculamento traseiro ou com plataforma elevatória de carga, o para-choque poderá estar posicionado até o limite de 400 mm da extremidade máxima traseira do veículo, cumpridos os demais requisitos estabelecidos nesta Resolução, conforme figuras 3a a 3e.

Parágrafo único. A menos que esteja rebocando outro veículo, os apoios de roda do dispositivo Asa Delta utilizado nas plataformas autossocorro devem estar sempre recolhidos para exercerem a função de para-choque (ver figura 3b).

Figura 3a - Vista lateral da parte traseira dos veículos - Betoneira

Figura 3b - Vista lateral da parte traseira dos veículos - Plataforma autossocorro com Asa Delta Figura 3c - Vista lateral da parte traseira dos veículos - Plataforma autossocorro sem Asa Delta Figura 3d - Vista lateral da parte traseira dos veículos com basculamento traseiro Figura 3e - Vista lateral da parte traseira dos veículos com plataforma elevatória de carga Art. 9º Para veículo equipado com plataforma elevatória de carga, o parachoque poderá se apresentar conforme exemplos da figuras 4a e 4b, desde que atendam as exigências dos ensaios previstos, ou que:

I - seja constituído de múltiplas partes, desde que elas tenham no mínimo 350 cm² de face;

II - a plataforma assuma a função do para-choque em sua totalidade, quando o veículo estiver em ordem de marcha (ver figuras 5a e 5b);

III - seja basculante, ou não, com a plataforma;

IV - seja removível, no todo ou em parte, durante a utilização da plataforma, em situação transitória;

V - seja articulado, no todo ou em parte, durante a utilização da plataforma, em situação transitória; ou

VI - seja constituído de lâminas telescópicas, que posicionadas adequadamente, em situação transitória, permitam a operação da plataforma.

§ 1º Nos casos em que o para-choque tenha que assumir posição transitória para permitir a operação da plataforma, os movimentos que o levam a tal posição, bem como o retorno à sua posição original, devem ser:

I - interligados à dinâmica da plataforma, de maneira direta ou indireta, através de movimentos suaves, sem sobressaltos, e sem apresentar interferências com outros componentes do conjunto veículo/plataforma;

II - acionados por mecanismo apropriado, dimensionado para tal fim, que deve ter vida útil compatível com a do conjunto veículo/plataforma.

§ 2º Alternativamente, no caso de acionamento manual do para-choque para posição transitória, até o seu retorno à posição original, deve:

I - ser disparado alarme sonoro e luminoso, junto à posição de comando da plataforma, quando esta se encontrar na posição de ordem de marcha e o para-choque não atenda a esta condição, alertando assim, sobre a condição irregular de posicionamento do para-choque, permanecendo ativo até que o para-choque esteja de acordo com condições de ordem de marcha ou a plataforma em operação;

II - ser inibida a sinalização de irregularidade de posicionamento do parachoque enquanto a plataforma estiver em operação; e

III - ter sistema de sinalização com vida útil compatível com o conjunto veículo/plataforma.

§ 3º Os modelos de para-choque e suas variantes, apresentados nas Figuras 4a, 4b, 5a e 5b, devem:

I - receber marcação conforme Item 3 do Anexo I desta Resolução no componente de maior significância do para-choque, e nos demais componentes, móveis ou removíveis, deverão receber, no mínimo, o número do chassi do veículo se o espaço disponível for diminuto, para relacionar tal componente ao para-choque como um todo;

II - participar dos programas promovidos pelo fabricante da plataforma, para a sua manutenção preventiva e corretiva; e

III - suportar os esforços previstos para as posições P1, P2 e P3, conforme o Item 2 do Anexo I desta Resolução.

Figura 4a - Exemplos de para-choque de veículo equipado com plataforma elevatória

Figura 4b - Exemplos de para-choque de veículo equipado com plataforma elevatória Figura 5a - Plataforma elevatória com a função de para-choque Figura 5b - Plataforma elevatória com a função de para-choque Art. 10. O órgão máximo executivo de trânsito da União poderá solicitar, a qualquer momento, às empresas fabricantes, às responsáveis pela complementação dos veículos e às importadoras a apresentação dos resultados de ensaios que comprovem o atendimento das exigências estabelecidas nesta Resolução.

Art. 11. As películas retrorrefletivas homologadas com a inscrição "APROVADO DENATRAN" afixadas nos veículos ficam convalidadas até o final de sua vida útil.

Parágrafo único. Fica concedido prazo de 2 de janeiro de 2023 para atendimento da inscrição "APROVADO SENATRAN" definida na alínea "a" do subitem 1.10.6. do Anexo I.

Art. 12. O descumprimento do disposto nesta Resolução implicará, conforme o caso, na aplicação ao infrator das penalidades e medidas administrativas previstas no seguintes dispositivos do CTB:

I - art. 230, inciso IX: quando o para-choque traseiro for exigível e ele não estiver instalado;

II - art. 230, inciso X: quando o para-choque traseiro não atender as especificações contidas nesta Resolução; e

III - art. 237: quando o para-choque traseiro não possuir a marcação, adesivo ou plaqueta de identificação previstos nesta Resolução ou quando as informações neles inscritas estiverem ilegíveis.

Parágrafo único. Os tipos infracionais e as situações descritas nos incisos do caput não afastam a possibilidade de aplicação de outras infrações, penalidades e medidas administrativas previstas no CTB.

Art. 13. Os Anexos desta Resolução encontram-se disponíveis no sitio eletrônico do órgão máximo executivo de trânsito da União.

Art. 14. Ficam revogadas as Resoluções CONTRAN:

I - nº 593, de 24 de maio de 2016;

II - nº 645, de 14 de dezembro 2016; e

III - nº 674, de 21 de junho de 2017.

Parágrafo único. Os veículos fabricados e registrados até 31 de dezembro de 2016 permanecem obrigados a cumprir as disposições contidas nas Resoluções CONTRAN nº 805, de 24 de outubro de 1995, e nº 152, de 29 de outubro de 2003, até que seja atendido o estabelecido nos §§ 1º e 2º do art. 3º.

Art. 15. Esta Resolução entra em vigor em 1º de abril de 2022.

MARCELO SAMPAIO CUNHA FILHO

Presidente do Conselho Em exercício

PAULO CÉSAR REZENDE DE CARVALHO ALVIM

Pelo Ministério da Ciência, Tecnologia e Inovações

ARNALDO CORREIA DE MEDEIROS

Pelo Ministério da Saúde

SILVINEI VASQUES

Pelo Ministério da Justiça e Segurança Pública

PAULINO FRANCO DE CARVALHO NETO

Pelo Ministério das Relações Exteriores

FERNANDO SILVEIRA CAMARGO

Pelo Ministério da Agricultura, Pecuária e Abastecimento