Publicado no DOU em 30 mai 2016
Estabelece as especificações técnicas para a fabricação e a instalação de parachoques traseiros nos veículos de fabricação nacional ou importados das categorias N2, N3, O3 e O4.
(Revogado pela Resolução CONTRAN Nº 952 DE 28/03/2022):
O Conselho Nacional de Trânsito - CONTRAN, usando da competência que lhe confere o inciso I do art. 12 da Lei nº 9.503, de 23 de setembro de 1997, que institui o Código de Trânsito Brasileiro - CTB, e conforme o Decreto nº 4.711, de 29 de maio de 2003, que dispõe sobre a Coordenação do Sistema Nacional de Trânsito - SNT;
Considerando a necessidade de aperfeiçoar e atualizar os requisitos de segurança para os veículos nacionais e importados;
Considerando a necessidade de minimizar as consequências dos acidentes em casos de colisões traseira;
Considerando que os veículos não devem transitar nas vias terrestres abertas à circulação pública sem que ofereçam condições mínimas de segurança; e
Considerando o constante dos processos nº 80020.001167/2015-83,
Resolve:
Art. 1º Esta Resolução estabelece as especificações técnicas para a fabricação e a instalação de para-choques traseiros nos veículos de fabricação nacional ou importados das categorias N2, N3, O3 e O4.
§ 1º Para efeito desta Resolução serão utilizadas as classificações a seguir:
I - categoria N: Veículo automotor que contém pelo menos quatro rodas, projetado e construído para o transporte de cargas.
a) categoria N2: Veículos projetados e construídos para o transporte de cargas e que contenham uma massa máxima superior a 3,5 t e não superior a 12 t.
b) categoria N3: Veículos projetados e construídos para o transporte de cargas e que contenham uma massa máxima superior a 12 t.
II - Categoria O: Reboques incluindo os Semirreboques.
a) categoria O3: Reboques (incluindo semirreboques) com uma massa máxima superior a 3,5 t e não superior a 10 t.
b) Categoria O4: Reboques (incluindo semirreboques) com uma massa máxima superior a 10t.
§ 2º Os requisitos técnicos e os métodos de ensaios dos para-choques traseiros estão definidos no Anexo I desta Resolução.
Art. 2º Aplica-se o disposto nesta Resolução aos veículos de que trata o art. 1º fabricados ou importados a partir de 1º de janeiro de 2017.
§ 1º Faculta-se aos fabricantes de veículos e de equipamentos veiculares a adoção desta Resolução a partir da data de sua publicação.
§ 2º Os veículos de que trata esta Resolução cujas quaisquer características forem alteradas, e que for exigida a realização de inspeção de segurança veicular para emissão do Certificado de Segurança Veicular - CSV, também devem atender às especificações constantes do Anexo desta Resolução.
§ 3º Os demais veículos em circulação de que trata esta Resolução devem atender as especificações constantes do Anexo, conforme cronograma a seguir:
| ALGARISMO FINAL DA PLACA | PRAZO FINAL PARA ADEQUAÇÃO |
| 1 e 2 | Até 31.12.2020 |
| 3 e 4 | Até 31.12.2021 |
| 5 e 6 | Até 31.12.2022 |
| 7 e 8 | Até 31.12.2023 |
| 9 e 0 | Até 31.12.2024 |
Art. 3º Para os efeitos de aplicação desta Resolução, define-se:
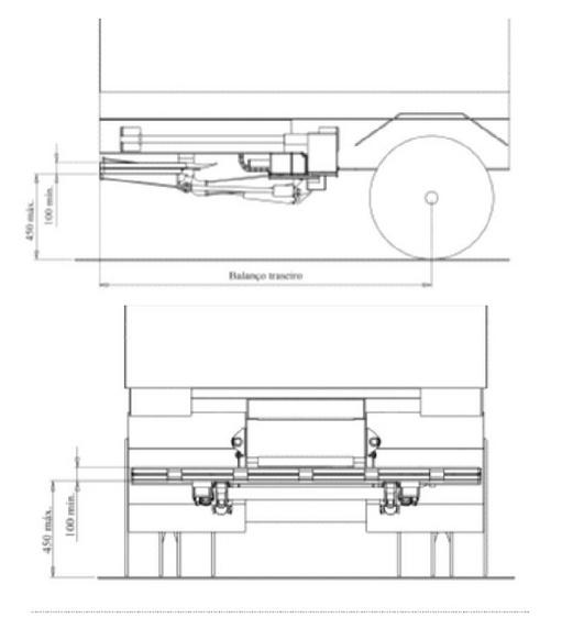
I - balanço traseiro: Distância da extremidade traseira até o centro do último eixo do veículo.
II - carga autoportante: É a capacidade de automanutenção estrutural de determinado componente quando submetida a carregamento do peso próprio mais carga líquida.
III - chassi: Parte do veículo constituída dos componentes necessários ao seu deslocamento e que suporta a carroceria.
IV - conjunto de ensaio: Conjunto constituído do para-choque e seus elementos de fixação.
V - dispositivo de ensaio: Estrutura rígida à qual é fixado o conjunto de ensaio para a aplicação das forças e medição das deformações.
VI - elemento horizontal: Perfil do para-choque que receberá os esforços P1, P2 e P3 estabelecidos no ensaio previsto nesta Resolução.
VII - equipamento veicular (carroceria): Implemento rodoviário específico, incorporado a um veículo automotor incompleto, seja chassi de caminhão ou rebocado incompleto (base), construído para complementá-lo, permitindo assim sua funcionalidade de transporte de cargas.
VIII - estrutura rígida: Estrutura cuja deformação máxima seja inferior a 1% em relação a deformação máxima permitida no ensaio do para-choque.
IX - extremidade do veículo: Plano vertical perpendicular ao plano longitudinal de simetria (do veículo) e que tangenciam a dianteira e traseira do veículo, respectivamente, desconsiderando os dispositivos mencionados no art. 1º da Resolução CONTRAN nº 258, de 2007.
X - família de para-choques: Grupo de para-choques construídos de acordo com o mesmo projeto, variando na altura das colunas de fixação submetidos a um mesmo procedimento de ensaio, considerando as colunas com maior dimensão do ponto de fixação ao elemento horizontal.
.png)
Figura 1 - Família de para-choques
XI - longarina: Elemento estrutural principal do quadro do chassi ou da carroceria, posicionado longitudinalmente no veículo.
XII - para-choque traseiro: Dispositivo de proteção, constituído de uma ou mais travessas e elementos de fixação para montagem, fixado às longarinas ou ao elemento que desempenha as funções destas e destinado a atenuar as lesões corporais e a reduzir os danos materiais consequentes de colisão envolvendo a traseira deste veículo.
XIII - para-choque removível: Para-choque cuja fixação seja resistente aos ensaios estabelecidos nesta Resolução, com a possibilidade de ser retirado do veículo, quando este se encontra em operações específicas, em que, se instalado, venha a prejudicar o correto andamento destas operações.
XIV - para-choque retrátil: Dispositivo de proteção equipado com sistema de articulação que permite variar a distância ao solo, girando no sentido contrário à marcha do veículo, quando este se desloca para frente, em situação transitória, devendo voltar à posição original, sem interferência do operador, assim que o obstáculo seja transposto.
XV - para-choque traseiro fixo: Dispositivo de proteção, constituído de uma travessa e elementos de fixação para montagem, destinado a atenuar as lesões corporais e a reduzir os danos materiais consequentes de colisão envolvendo a traseira deste veículo.
XVI - placa de contato: Elemento de contato posicionado entre o dispositivo aplicador de força e o elemento horizontal do para-choque, com a função de distribuir de forma padronizada a força em torno de seu ponto de aplicação.
Art. 4º Estão isentos da instalação do para-choque traseiro os seguintes veículos:
I - inacabados ou incompletos;
II - caminhões-tratores;
III - produzidos especialmente para cargas autoportantes e veículos muito longos que necessitem de Autorização Especial de Trânsito - AET;
IV - aqueles nos quais a aplicação do para-choque traseiro especificado nesta Resolução seja incompatível com a sua utilização. Neste caso, a estrutura que substitui o para-choque deverá atender os esforços estabelecidos nos ensaios descritos no Item 4 do Anexo I, comprovados por meio de relatório de ensaio, e ter altura máxima do solo de 450 mm;
V - veículos completos da categoria N2 e N3 que possuam para-choque traseiro incorporado ao projeto original do fabricante do veículo automotor;
VI - veículos de uso bélico;
VII - de coleção;
VIII - exclusivos para uso fora-de-estrada;
IX - destinados à exportação;
X - rebocados destinados ao transporte de cargas indivisíveis (carrega-tudo).
§ 1º Os tipos de veículos ou equipamentos veiculares que se enquadram no inciso IV deste Artigo são aqueles definidos no Anexo II desta Resolução.
§ 2º Compete ao Órgão Máximo Executivo de Trânsito da União atualizar o Anexo II, a qualquer tempo.
§ 3º Os fabricantes, importadores e encarroçadores dos veículos ou equipamentos veiculares que se enquadram no Inciso IV deste Artigo deverão fazer constar nas notas fiscais a expressão "ISENTO DE PARA-CHOQUE TRASEIRO", conforme Resolução CONTRAN nº 592, de 24 de maio de 2016.
§ 4º A isenção de para-choque traseiro nos veículos ou equipamentos veiculares que se enquadram no Inciso IV deste Artigo deverá constar no campo das observações do Certificado de Registro - CRV e do Certificado de Registro e Licenciamento - CRLV do veículo.
Art. 5º Compete à empresa responsável pela complementação dos veículos inacabados ou incompletos o atendimento aos requisitos constantes desta Resolução.
(Redação do artigo dada pela Resolução CONTRAN Nº 674 DE 21/06/2017):
Art. 6º Os veículos cuja distância da face traseira do pneu até a extremidade máxima traseira de sua estrutura seja igual ou inferior a 400 mm estão isentos dos requisitos de para-choque e deverão portar um perfil horizontal para fixação da faixa retrorrefletiva com, no mínimo, 100 mm de altura e mínimo 1600 mm de comprimento, centralizado em relação ao eixo longitudinal do veículo, cuja altura da borda inferior do elemento horizontal em relação ao plano de apoio das rodas seja de no máximo 550 mm, medida com o veículo com a massa em ordem de marcha.
Figura 2 - Dimensões do perfil horizontal
§ 1º Os veículos enquadrados neste artigo devem atender aos §§ 3º e 4º do art. 4º.
§ 2º Este artigo não se aplica aos veículos enquadrados no art. 4º.
Art. 7º Nos veículos com betoneira, plataforma autossocorro, basculamento traseiro ou com plataforma elevatória de carga, o para-choque poderá estar posicionado até o limite de 400 mm da extremidade máxima traseira do veículo, cumpridos os demais requisitos estabelecidos nesta Resolução, conforme Figuras "3a" a "3e".
Parágrafo único. A menos que esteja rebocando outro veículo, os apoios de roda do dispositivo Asa Delta utilizado nas plataformas autossocorro devem estar sempre recolhidos para exercerem a função de para-choque (ver figura 3b).
.png)
Figura 3a - Vista lateral da parte traseira dos veículos - Betoneira
.png)
Figura 3b - Vista lateral da parte traseira dos veículos - Plataforma autossocorro com Asa Delta
.png)
Figura 3c - Vista lateral da parte traseira dos veículos - Plataforma autossocorro sem Asa Delta
.png)
Figura 3d - Vista lateral da parte traseira dos veículos com basculamento traseiro
.png)
Figura 3e - Vista lateral da parte traseira dos veículos com plataforma elevatória de carga
Art. 8º Para veículo equipado com plataforma elevatória de carga, o para-choque poderá se apresentar conforme exemplos da Figura 4, desde que atendam as exigências dos ensaios previstos, e/ou:
I - seja constituído de múltiplas partes, desde que elas tenham no mínimo 350cm² de face;
II - a plataforma assuma a função do para-choque em sua totalidade, quando o veículo estiver em ordem de marcha (ver Figura 5);
III - seja basculante, ou não, com a plataforma;
IV - seja removível, no todo ou em parte, durante a utilização da plataforma, em situação transitória;
V - seja articulado, no todo ou em parte, durante a utilização da plataforma, em situação transitória;
VI - seja constituído de lâminas telescópicas, que posicionadas adequadamente, em situação transitória, permitam a operação da plataforma.
§ 1º Nos casos em que o para-choque tenha que assumir posição transitória para permitir a operação da plataforma, os movimentos que o levam a tal posição, bem como o retorno à sua posição original, devem:
a) ser interligados à dinâmica da plataforma, de maneira direta ou indireta, através de movimentos suaves, sem sobressaltos, e sem apresentar interferências com outros componentes do conjunto veículo/plataforma;
b) ser acionado por mecanismo apropriado, dimensionado para tal fim, que deve ter vida útil compatível com a do conjunto veículo/plataforma.
§ 2º Alternativamente, no caso de acionamento manual do para-choque para posição transitória, até o seu retorno à posição original, deve:
a) ser disparado alarme sonoro e luminoso, junto à posição de comando da plataforma, quando esta se encontrar na posição de ordem de marcha e o para-choque não atenda a esta condição, alertando assim, sobre a condição irregular de posicionamento do para-choque, permanecendo ativo até que o parachoque esteja de acordo com condições de ordem de marcha ou a plataforma em operação;
b) ser inibida a sinalização de irregularidade de posicionamento do para-choque enquanto a plataforma estiver em operação;
c) ter sistema de sinalização com vida útil compatível com o conjunto veículo/plataforma;
§ 3º Os modelos de para-choque e suas variantes, apresentados nas Figuras 4 e 5, devem:
a) receber marcação conforme Item 3 do Anexo I desta Resolução no componente de maior significância do para-choque, e nos demais componentes, móveis ou removíveis, deverão receber, no mínimo, o número do chassi do veículo se o espaço disponível for diminuto, para relacionar tal componente ao para-choque como um todo;
b) participar dos programas promovidos pelo fabricante da plataforma, para a sua manutenção preventiva e corretiva;
c) suportar os esforços previstos para as posições P1, P2 e P3 conforme o Item 2 do Anexo I desta Resolução.
.png)
Figura 4 - Exemplos de para-choque de veículo equipado com plataforma elevatória
.png)
Figura 5 - Plataforma elevatória com a função de para-choque
Art. 9º O Órgão Máximo Executivo de Trânsito da União poderá solicitar, a qualquer momento, às empresas fabricantes, às responsáveis pela complementação dos veículos e às importadoras, a apresentação dos resultados de ensaios que comprovem o atendimento das exigências estabelecidas nesta Resolução.
(Redação do artigo dada pela Resolução CONTRAN Nº 674 DE 21/06/2017):
Art. 10. Revogam-se, a partir de 1º de janeiro de 2017, as Resoluções CONTRAN nº 805/1995 e nº 152/2003.
Parágrafo único. Os veículos fabricados e registrados até 31 de dezembro de 2016 permanecem obrigados a cumprir as disposições contidas nas Resoluções CONTRAN nº 805/1995 e nº 152/2003, até que seja atendido o estabelecido nos §§ 2º e 3º do art. 2º.
Nota LegisWeb: Ver Resolução CONTRAN Nº 674 DE 21/06/2017, que altera itens do Anexo I da Resolução CONTRAN nº 593, de 24 de maio de 2016.
Art. 11. Os Anexos desta Resolução encontram-se no sítio eletrônico do DENATRAN, a saber: www. denatran. gov. br.
Art. 12. O não cumprimento do disposto nesta Resolução implicará, conforme o caso, na aplicação das sanções previstas no Art. 230, incisos IX, X e Art. 237 do Código de Trânsito Brasileiro - CTB.
Art. 13. Esta Resolução entra em vigor na data de sua publicação.
ALBERTO ANGERAMI
Presidente do Conselho
GUILHERME MORAES REGO
Ministério da Justiça e Cidadania
ALEXANDRE EUZÉBIO DE MORAIS
Ministério dos Transportes, Portos e Aviação Civil
RAFAEL SILVA MENEZES
Ministério da Ciência, Tecnologia, Inovações e Comunicações
EDILSON DOS SANTOS MACEDO
Ministério das Cidades
THOMAS PARIS CALDELLAS
Ministério da Indústria, Comercio Exterior