Publicado no DOU em 19 abr 2013
NR - 36 - SEGURANÇA E SAÚDE NO TRABALHO EM EMPRESAS DE ABATE E PROCESSAMENTO DE CARNES E DERIVADOS.
Nota Legisweb: Ver a Portaria MTE Nº 1065 DE 01/07/2024, que disponibiliza a NR 36 atualizada.
Anexo I da NR-36 - Glossário
36.1 Objetivo e campo de aplicação
36.1.1 O objetivo desta Norma é estabelecer os requisitos mínimos para a avaliação, controle e monitoramento dos riscos existentes nas atividades desenvolvidas nas indústrias de abate e de processamento de carnes e derivados destinados ao consumo humano, de forma a garantir permanentemente a segurança, a saúde e a qualidade de vida no trabalho, sem prejuízo da observância do disposto nas demais Normas Regulamentadoras (NR) de Segurança e Saúde no Trabalho.
36.1.2 As disposições desta Norma aplicam-se a todas as organizações que desenvolvem atividades de abate e de processamento de carnes e derivados destinados ao consumo humano.
36.2 Mobiliário e postos de trabalho
36.2.1 Sempre que o trabalho puder ser executado alternando a posição de pé com a posição sentada, o posto de trabalho deve ser planejado ou adaptado para favorecer a alternância das posições.
36.2.2 Para possibilitar a alternância do trabalho sentado com o trabalho em pé, referida no item 36.2.1 desta NR, a organização deve fornecer assentos para os postos de trabalho estacionários, de acordo com a avaliação prevista no capítulo 36.15 desta NR, assegurando, no mínimo, um assento para cada três trabalhadores.
36.2.3 O número de assentos dos postos de trabalho cujas atividades possam ser efetuadas em pé e sentado deve ser suficiente para garantir a alternância das posições, observado o previsto no item 36.2.2 desta NR.
36.2.4 Para o trabalho manual sentado ou em pé, as bancadas, esteiras, nórias, mesas ou máquinas devem proporcionar condições de boa postura, visualização e operação, atendendo aos seguintes requisitos mínimos:
a) altura e características da superfície de trabalho compatíveis com o tipo de atividade, com a distância requerida dos olhos ao campo de trabalho e com a altura do assento;
b) características dimensionais que possibilitem posicionamento e movimentação adequados dos segmentos corporais isentas de amplitudes articulares excessivas, tanto para o trabalho na posição sentada quanto na posição em pé;
c) área de trabalho dentro da zona de alcance manual permitindo o posicionamento adequado dos segmentos corporais; e
d) ausência de quinas vivas ou rebarbas.
36.2.5 As dimensões dos espaços de trabalho devem ser suficientes para que o trabalhador possa movimentar os segmentos corporais livremente, de forma segura, de maneira a facilitar o trabalho, reduzir o esforço do trabalhador e não exigir a adoção de posturas extremas ou nocivas.
36.2.6 Para o trabalho realizado sentado, além do previsto no item 17.6.6 da NR-17 (Ergonomia), os assentos utilizados nos postos de trabalho devem atender aos seguintes requisitos:
a) possuir sistemas de ajustes de fácil manuseio; e
b) ser construídos com material que priorize o conforto térmico, obedecidas as características higiênico-sanitárias legais.
36.2.6.1 Deve ser fornecido apoio para os pés que se adapte ao comprimento das pernas do trabalhador, nos casos em que os pés do operador não alcançarem o piso, mesmo após a regulagem do assento, com as seguintes características:
a) dimensões que possibilitem o posicionamento e a movimentação adequada dos segmentos corporais, permitindo as mudanças de posição e o apoio total das plantas dos pés;
b) altura e inclinação ajustáveis e de fácil acionamento;
c) superfície revestida com material antiderrapante, obedecidas as características higiênico-sanitárias legais.
36.2.6.2 O mobiliário utilizado nos postos de trabalho onde o trabalhador pode trabalhar sentado deve:
a) possuir altura do plano de trabalho e altura do assento compatíveis entre si; e
b) ter espaços e profundidade suficientes para permitir o posicionamento adequado das coxas, a colocação do assento e a movimentação dos membros inferiores.
36.2.7 Para o trabalho realizado exclusivamente em pé, devem ser atendidos os seguintes requisitos mínimos:
a) zonas de alcance horizontal e vertical que favoreçam a adoção de posturas adequadas, e que não ocasionem amplitudes articulares excessivas, tais como elevação dos ombros, extensão excessiva dos braços e da nuca, flexão ou torção do tronco;
b) espaço suficiente para pernas e pés na base do plano de trabalho, para permitir que o trabalhador se aproxime o máximo possível do ponto de operação e possa posicionar completamente a região plantar;
c) barras de apoio para os pés para alternância dos membros inferiores, quando a atividade permitir; e
d) existência de assentos ou bancos próximos ao local de trabalho para as pausas permitidas pelo trabalho, atendendo no mínimo 50% (cinquenta por cento) do efetivo que usufruirá dessas pausas.
36.2.8 Para as atividades que necessitam do uso de pedais e comandos acionados com os pés ou outras partes do corpo de forma permanente e repetitiva, os trabalhadores devem efetuar alternância com atividades que demandem diferentes exigências físico-motoras.
36.2.8.1 Caso os comandos sejam acionados por outras partes do corpo, devem ter posicionamento e dimensões que possibilitem alcance fácil e seguro e movimentação adequada dos segmentos corporais.
36.2.9 Os postos de trabalho devem possuir:
a) pisos com características antiderrapantes, obedecidas as características higiênico-sanitárias legais;
b) sistema de escoamento de água e resíduos;
c) áreas de trabalho e de circulação dimensionadas de forma a permitir a movimentação segura de materiais e pessoas;
d) proteção contra intempéries quando as atividades ocorrerem em área externa, obedecida a hierarquia das medidas previstas na alínea "g" do item 1.4.1 da NR-1 (Disposições Gerais e Gerenciamento de Riscos Ocupacionais); e
e) limpeza e higienização constantes.
36.2.10 Câmaras Frias
36.2.10.1 As câmaras frias devem possuir dispositivo que possibilite abertura das portas pelo interior sem muito esforço, e alarme ou outro sistema de comunicação, que possa ser acionado pelo interior, em caso de urgência.
36.2.10.1.1 As câmaras frias cuja temperatura for igual ou inferior a -18 °C (dezoito graus celsius negativos) devem possuir indicação do tempo máximo de permanência no local.
36.3 Estrados, passarelas e plataformas
36.3.1 Os estrados utilizados para adequação da altura do plano de trabalho ao trabalhador nas atividades realizadas em pé, devem ter dimensões, profundidade, largura e altura que permitam a movimentação segura do trabalhador.
36.3.2 É vedado improvisar a adequação da altura do posto de trabalho ao trabalhador com materiais não destinados para este fim.
36.3.3 As plataformas, escadas fixas e passarelas devem atender ao disposto na NR-12 (Segurança e Saúde no Trabalho em Máquinas e Equipamentos).
36.3.3.1 Caso seja tecnicamente inviável a colocação de guarda-corpo, tais como nas fases de evisceração e espostejamento de animais de grande e médio porte, em plataformas elevadas, devem ser adotadas medidas preventivas que garantam a segurança dos trabalhadores e o posicionamento adequado dos segmentos corporais.
36.3.4 A altura, posicionamento e dimensões das plataformas devem ser adequadas às características da atividade, de maneira a facilitar a tarefa a ser exercida com segurança, sem uso excessivo de força e sem exigência de adoção de posturas extremas ou nocivas de trabalho.
36.4 Manuseio de produtos
36.4.1 A organização deve adotar meios técnicos e organizacionais para reduzir os esforços nas atividades de manuseio de produtos.
36.4.1.1 O manuseio de animais ou produtos não deve propiciar o uso de força muscular excessiva por parte dos trabalhadores, devendo ser atendidos, no mínimo, os seguintes requisitos:
a) os elementos a serem manipulados, devem estar dispostos dentro da área de alcance principal para o trabalhador, tanto para a posição sentada como em pé;
b) a altura das esteiras ou de outro mecanismo utilizado para depósito de produtos e de partes dos produtos manuseados, deve ser dimensionada de maneira a não propiciar extensões e/ou elevações excessivas dos braços e ombros; e
c) as caixas e outros continentes utilizados para depósito de produtos devem estar localizados de modo a facilitar a pega e não propiciar a adoção excessiva e continuada de torção e inclinações do tronco, elevação e/ou extensão dos braços e ombros.
36.4.1.2 Os elementos a serem manipulados, tais como caixas, bandejas, engradados, devem:
a) possuir dispositivos adequados ou formatos para pega segura e confortável;
b) estar livres de quinas ou arestas que possam provocar irritações ou ferimentos;
c) ter dimensões e formato que não provoquem o aumento do esforço físico do trabalhador; e
d) ser estáveis.
36.4.1.2.1 O item 36.4.1.2 desta NR não se aplica a caixas de papelão ou produtos finais selados.
36.4.1.3 Os sistemas utilizados no transporte de produtos a serem espostejados em linha, trilhagem aérea mecanizada e esteiras, devem ter características e dimensões que evitem a adoção de posturas excessivas e continuadas dos membros superiores e da nuca.
36.4.1.4 Não devem ser efetuadas atividades que exijam manuseio ou carregamento manual de peças, volumosas ou pesadas, que possam comprometer a segurança e a saúde do trabalhador.
36.4.1.5 Caso a peça não seja de fácil manuseio, devem ser utilizados meios técnicos que facilitem o transporte da carga.
36.4.1.5.1 Sendo inviável tecnicamente a mecanização do transporte, devem ser adotadas medidas, tais como redução da frequência e do manuseio dessas cargas.
36.4.1.6 Devem ser implementadas medidas de controle que evitem que os trabalhadores, ao realizar suas atividades, sejam obrigados a efetuar de forma contínua e repetitiva:
a) movimentos bruscos de impacto dos membros superiores;
b) uso excessivo de força muscular;
c) frequência de movimentos dos membros superiores que possam comprometer a segurança e saúde do trabalhador;
d) exposição prolongada a vibrações; ou
e) imersão ou contato permanente das mãos com água.
36.4.1.7 Nas atividades de processamento de animais, principalmente os de grande e médio porte, devem ser adotados:
a) sistemas de transporte e ajudas mecânicas na sustentação de cargas, partes de animais e ferramentas pesadas;
b) medidas organizacionais e administrativas para redução da frequência e do tempo total nas atividades de manuseio, quando a mecanização for tecnicamente inviável; e
c) medidas técnicas para prevenir que a movimentação do animal durante a realização da tarefa possa ocasionar riscos de acidentes, tais como corte, tombamento e prensagem do trabalhador.
36.5 Levantamento e transporte de produtos e cargas
36.5.1 A organização deve adotar medidas técnicas e organizacionais apropriadas e fornecer os meios adequados para reduzir a necessidade de carregamento manual constante de produtos e cargas cujo peso possa comprometer a segurança e saúde dos trabalhadores.
36.5.2 O levantamento, transporte, descarga, manipulação e armazenamento de produtos, partes de animais e materiais devem ser executados de forma que o esforço físico realizado pelo trabalhador seja compatível com sua segurança, saúde e capacidade de força.
36.5.3 A organização deve efetuar avaliação prevista no item 36.15 desta NR para avaliar a compatibilidade do esforço físico dos trabalhadores com a sua capacidade de força, nas atividades que exijam levantamento, transporte, descarga, manipulação e armazenamento de animais, produtos e materiais de forma constante e repetitiva.
36.5.4 A duração e a frequência da tarefa de carregamento manual de cargas que possa comprometer a segurança e saúde do trabalhador devem ser limitadas, devendo-se efetuar alternância com outras atividades ou pausas adequadas, entre períodos não superiores a duas horas, ressalvadas outras disposições legais.
36.5.5 Devem ser adotadas medidas para adequação do peso e do tamanho da carga, do número de movimentos a serem efetuados, da frequência de levantamento e carregamento e das distâncias a percorrer com cargas que possam comprometer a segurança e saúde dos trabalhadores.
36.5.6 Os pisos e as passagens onde são efetuadas operações de levantamento, carregamento e transporte manual de cargas devem estar em perfeito estado de conservação e desobstruídos.
36.5.7 No levantamento, manuseio e transporte individual de cargas deve ser observado, além do disposto no item 17.5 da NR-17, os seguintes requisitos:
a) a estocagem dos materiais e produtos deve ser organizada em função dos pesos e da frequência de manuseio, de maneira a não exigir manipulação constante de carga com pesos que possam comprometer a segurança e saúde do trabalhador; e
b) devem ser adotadas medidas, sempre que tecnicamente possível, para que quaisquer materiais e produtos a serem erguidos, retirados, armazenados ou carregados de forma frequente não estejam localizados próximos ao solo ou acima dos ombros;
36.5.7.1 É vedado o levantamento não eventual de cargas quando a distância de alcance horizontal da pega for superior a 60 cm (sessenta centímetros) em relação ao corpo.
36.5.8 Devem ser adotados meios técnicos, administrativos e organizacionais, a fim de evitar esforços contínuos e prolongados do trabalhador, para impulsão e tração de cargas.
36.5.8.1 Sempre que tecnicamente possível, devem ser disponibilizados vagonetes com rodas apropriadas ou movidos a eletricidade ou outro sistema de transporte por impulsão ou tração que facilite a movimentação e reduza o esforço do trabalhador.
36.5.9 O transporte e a descarga de materiais feitos por impulsão ou tração de vagonetes sobre trilhos, carros de mão ou qualquer outro aparelho mecânico devem ter mecanismos que propiciem posicionamento e movimentação adequados dos segmentos corporais, de forma que o esforço físico realizado pelo trabalhador seja compatível com sua capacidade de força e não comprometa a sua segurança ou saúde.
36.5.10 As alças, empunhaduras ou pontos de apoio de vagonetes ou outros equipamentos para transporte por impulsão devem ter formato anatômico, para facilitar a pega, e serem posicionadas em altura adequada, de modo a não induzir a adoção de posturas forçadas, tais como a flexão do tronco.
36.5.11 Os equipamentos de transporte devem ser submetidos a manutenções periódicas.
36.6 Recepção e descarga de animais
36.6.1 As atividades de descarga e recepção de animais devem ser devidamente organizadas e planejadas, devendo envolver, no mínimo:
a) procedimentos específicos e regras de segurança na recepção e descarga de animais para os trabalhadores e terceiros, incluindo os motoristas e ajudantes;
b) sinalização e/ou separação das áreas de passagem de veículos, animais e pessoas;
c) plataformas de descarregamento de animais isoladas de outros setores ou locais de trabalho;
d) postos de trabalho, da recepção até o curral de animais de grande porte, protegidos contra intempéries;
e) medidas de proteção contra a movimentação intempestiva e perigosa dos animais de grande porte que possam gerar risco aos trabalhadores;
f) passarelas para circulação dos trabalhadores ao lado ou acima da plataforma quando o acesso aos animais assim o exigir;
g) informação aos trabalhadores sobre os riscos e as medidas de prevenção no trabalho com animais vivos; e
h) estabelecimento de procedimentos de orientação aos contratados e terceiros acerca das disposições relativas aos riscos ocupacionais.
36.6.1.1 Para a atividade de descarga de animais de grande porte é proibido o trabalho isolado.
36.6.2 Nas áreas de recepção e descarga de animais devem permanecer somente trabalhadores devidamente informados e treinados.
36.6.3 Na recepção e descarga de aves devem ser adotadas medidas de controle de poeiras de maneira a garantir que os níveis não sejam prejudiciais à saúde dos trabalhadores.
36.6.4 O box de atordoamento de animais - acesso ao local e ao animal, e as posições e uso dos comandos, devem permitir a execução segura da atividade para qualquer tipo, tamanho e forma de abate do animal.
36.6.5 Devem ser previstos dispositivos para reter o animal de médio e grande porte no caso de um atordoamento falho ou de procedimentos de não atordoamento que possam gerar riscos ao trabalhador devido à movimentação dos animais.
36.6.6 A atividade de verificação de animais de grande porte deve ser realizada de maneira que as condições do local e dos acessos garantam o posicionamento adequado e seguro dos segmentos corporais dos trabalhadores.
36.6.7 Devem ser adotadas medidas de prevenção para que as atividades de segurar e degolar animais sejam efetuadas de modo a permitir a movimentação adequada e segura dos trabalhadores.
36.6.7.1 Devem ser adotados rodízios ou pausas ou outras medidas preventivas para minimizar a exposição dos trabalhadores nas atividades descritas no item 36.6.7 desta NR e na sangria manual.
36.7 Máquinas
36.7.1 As máquinas e equipamentos utilizados nas organizações de abate e processamento de carnes e derivados devem atender ao disposto na NR-12 (Segurança no Trabalho em Máquinas e Equipamentos).
36.7.2 O efetivo de trabalhadores da manutenção deve ser compatível com a quantidade de máquinas e equipamentos existentes na organização.
36.7.3 Os sistemas de trilhagem aérea, esteiras transportadoras, roscas sem fim ou nórias devem estar equipados com um ou mais dispositivos de parada de emergência, que permitam a interrupção do seu funcionamento por segmentos curtos, a partir de qualquer um dos operadores em seus postos de trabalho.
36.7.4 Os elevadores, guindastes ou quaisquer outras máquinas e equipamentos devem oferecer garantias de resistência, segurança e estabilidade.
36.7.5 As atividades de manutenção e higienização de máquinas e equipamentos que possam ocasionar riscos de acidentes devem ser realizadas por mais de um trabalhador, desde que a análise de risco da máquina ou equipamento assim o exigir.
36.7.6 As instalações elétricas das máquinas e equipamentos devem ser projetadas e mantidas de modo a prevenir, por meios seguros, os riscos de choque elétrico e todos os outros tipos de acidentes, atendendo as disposições contidas nas NR-12 (Segurança no Trabalho em Máquinas e Equipamentos) e NR-10 (Segurança em Instalações e Serviços em Eletricidade).
36.7.7 Devem ser adotadas medidas de controle para proteger os trabalhadores dos riscos adicionais provenientes:
a) da emissão ou liberação de agentes físicos ou químicos pelas máquinas e equipamentos;
b) das emanações aquecidas de máquinas, equipamentos e tubulações; e
c) do contato do trabalhador com superfícies quentes de máquinas e equipamentos que possam ocasionar queimaduras.
36.7.8 Nos locais fechados e sem ventilação é proibida a utilização de máquinas e equipamentos movidos a combustão interna, salvo se providos de dispositivos neutralizadores adequados.
36.8 Equipamentos e ferramentas
36.8.1 Os equipamentos e ferramentas disponibilizados devem favorecer a adoção de posturas e movimentos adequados, facilidade de uso e conforto, de maneira a não obrigar o trabalhador ao uso excessivo de força, pressão, preensão, flexão, extensão ou torção dos segmentos corporais.
36.8.2 O tipo, formato e a textura da empunhadura das facas devem ser apropriados à tarefa, à mão do trabalhador e ao eventual uso de luvas.
36.8.3 As ferramentas devem ser específicas e adequadas para cada tipo de atividade e tão leves e eficientes quanto possível.
36.8.4 Devem ser adotadas medidas preventivas para permitir o uso correto de ferramentas ou equipamentos manuais de forma a evitar a compressão da palma da mão ou de um ou mais dedos em arestas ou quinas vivas dos equipamentos.
36.8.4.1 As medidas preventivas devem incluir, no mínimo:
a) afiação e adequação de ferramentas e equipamentos; e
b) treinamento e orientação, na admissão e periodicamente.
36.8.5 Os equipamentos manuais, cujos pesos forem passiveis de comprometer a segurança e saúde dos trabalhadores, devem ser dotados de dispositivo de sustentação.
36.8.6 Os equipamentos devem estar posicionados dentro dos limites de alcance manual e visual do operador, permitindo a movimentação adequada e segura dos membros superiores e inferiores e respeitando a natureza da tarefa.
36.8.7 Os equipamentos e ferramentas elétricas devem estar aterrados e as fiações e cabos devem ser submetidos a revisões periódicas para verificação de sinais de desgaste ou outros defeitos que possam comprometer a segurança.
36.8.8 As ferramentas e equipamentos de trabalho devem ter sistema de manutenção constante.
36.8.9 Devem ser consideradas as sugestões dos trabalhadores na escolha das ferramentas e dos equipamentos manuais.
36.8.10 As organizações devem:
a) estabelecer critérios de exigências para a escolha das características das facas, com a participação dos trabalhadores, em função das necessidades das tarefas existentes na organização;
b) implementar sistema para controle de afiação das facas;
c) estabelecer mecanismos de reposição constante de facas afiadas, em quantidade adequada em função da demanda de produção;
d) instruir os supervisores sobre a importância da reposição de facas afiadas, e
e) treinar os trabalhadores, especialmente os recém-admitidos ou nos casos de mudança de função, no uso da chaira, quando aplicável à atividade.
36.8.11 O setor ou local destinado a afiação de facas, onde houver, deve possuir espaço físico e mobiliário adequado e seguro.
36.9 Condições ambientais de trabalho
36.9.1 Ruído
36.9.1.1 Para controlar a exposição ao ruído ambiental devem ser adotadas medidas que priorizem a sua eliminação, a redução da sua emissão e a redução da exposição dos trabalhadores, nesta ordem.
36.9.1.2 Todas as condições de trabalho com níveis de ruído excessivo devem ser objeto de estudo para determinar as mudanças estruturais necessárias nos equipamentos e no modo de produção, a fim de eliminar ou reduzir os níveis de ruído.
36.9.1.3 As recomendações para adequações e melhorias devem ser expressas em planos de ação claros e objetivos, com definição de datas de implantação e com a observância do item 1.5.5.1.2 da NR-1.
36.9.1.4 Caso não seja possível tecnicamente eliminar ou reduzir a emissão do ruído deve-se obedecer a hierarquia das medidas de prevenção conforme prevista no item 1.5.5.1.2 da NR-1.
36.9.2 Qualidade do ar nos ambientes artificialmente climatizados
36.9.2.1 As organizações devem efetuar o controle do ar nos ambientes artificialmente climatizados a fim de manter a boa qualidade do ar interno e garantir a prevenção de riscos à saúde dos trabalhadores.
36.9.2.2 Para atender o disposto no item 36.9.2.1 desta NR devem ser adotados, no mínimo, o seguinte:
a) limpeza dos componentes do sistema de climatização de forma a evitar a difusão ou multiplicação de agentes nocivos à saúde humana;
b) verificação periódica das condições físicas dos filtros mantendo-os em condições de operação e substituindo-os quando necessário; e
c) adequada renovação do ar no interior dos ambientes climatizados.
36.9.2.3 Deve ser observado, como indicador de renovação de ar interno, uma concentração de dióxido de carbono (CO2) igual ou inferior a 1.000 ppm (mil partes por milhão).
36.9.2.3.1 Uma medição de CO2 acima de 1.000 ppm (mil partes por milhão) não indica que o critério não é satisfeito, desde que a medição não ultrapasse em mais de 700 ppm (setecentas partes por milhão) a concentração no ar exterior.
36.9.2.3.2 Para aferição do parâmetro indicado no item 36.9.2.3 desta NR deve ser adotada a metodologia constante na Norma Técnica 002 (Qualidade do Ar Ambiental Interior. Método de Amostragem e Análise da Concentração de Dióxido de Carbono em Ambientes Interiores) da Resolução RE n.º 9 da ANVISA, de 16 de janeiro de 2003.
36.9.2.4 Os procedimentos de manutenção, operação e controle dos sistemas de climatização e limpeza dos ambientes climatizados não devem trazer riscos à saúde dos trabalhadores que os executam, nem aos ocupantes dos ambientes climatizados.
36.9.3 Agentes químicos
36.9.3.1 A organização deve adotar medidas de prevenção coletivas e individuais quando da utilização de produtos químicos.
36.9.3.2 As medidas de prevenção coletivas a serem adotadas quando da utilização de amônia devem envolver, no mínimo:
a) manutenção das concentrações ambientais aos níveis mais baixos possíveis e sempre abaixo do nível de ação (NR-9), por meio de ventilação adequada;
b) implantação de mecanismos para a detecção precoce de vazamentos nos pontos críticos, acoplados a sistema de alarme;
c) instalação de painel de controle do sistema de refrigeração;
d) instalação de chuveiros de segurança e lava-olhos;
e) manutenção de saídas de emergência desobstruídas e adequadamente sinalizadas;
f) manutenção de sistemas apropriados de prevenção e combate a incêndios, em perfeito estado de funcionamento;
g) instalação de chuveiros ou sprinklers acima dos grandes vasos de amônia, para mantê-los resfriados em caso de fogo, de acordo com a análise de risco;
h) manutenção das instalações elétricas à prova de explosão, próximas aos tanques;
i) sinalização e identificação dos componentes, inclusive as tubulações; e
j) permanência apenas das pessoas autorizadas para realizar atividades de inspeção, manutenção ou operação de equipamentos na sala de máquinas.
36.9.3.2.1 Em caso de vazamento de amônia, o painel de controle do sistema de refrigeração deve:
a) acionar automaticamente o sistema de alarme; e
b) acionar o sistema de controle e eliminação da amônia.
36.9.3.3 A organização deve elaborar Plano de Resposta a Emergências que contemple ações específicas a serem adotadas na ocorrência de vazamentos de amônia.
36.9.3.3.1 O Plano de Resposta a Emergências deve conter, no mínimo:
a) nome e função do responsável técnico pela elaboração e revisão do plano;
b) nome e função do responsável pelo gerenciamento e execução do plano;
c) designação dos integrantes da equipe de emergência, responsáveis pela execução de cada ação;
d) estabelecimento dos possíveis cenários de emergências, com base na análise de riscos;
e) descrição das medidas necessárias para resposta a cada cenário contemplado;
f) descrição dos procedimentos de resposta à emergência, incluindo medidas de evacuação das áreas, remoção das fontes de ignição, quando necessário, formas de redução da concentração de amônia e procedimentos de contenção de vazamento;
g) descrição das medidas de proteção coletiva e individual;
h) indicação dos Equipamentos de Proteção Individual (EPI) adequados ao risco; e
i) registro dos exercícios simulados realizados com periodicidade mínima anual envolvendo todos os empregados da área.
36.9.3.4 Sempre que ocorrer acidente que implique vazamento de amônia nos ambientes de trabalho, deve ser efetuada a medição da concentração do produto no ambiente para que seja autorizado o retorno dos trabalhadores às suas atividades.
36.9.3.4.1 Deve ser realizada avaliação das causas e consequências do acidente, com registro das ocorrências, postos e locais afetados, identificação dos trabalhadores expostos, resultados das avaliações clínicas e medidas de prevenção a serem adotadas.
36.9.4 Agentes biológicos
36.9.4.1 Devem ser identificadas as atividades e especificadas as tarefas suscetíveis de expor os trabalhadores a contaminação biológica, através de:
a) estudo do local de trabalho, considerando as medidas de controle e higiene estabelecidas pelas Boas Práticas de Fabricação (BPF);
b) controles mitigadores estabelecidos pelos serviços de inspeção sanitária, desde a criação até o abate;
c) identificação dos agentes patogênicos e meios de transmissão;
d) dados epidemiológicos referentes ao agente identificado, incluindo aqueles constantes dos registros dos serviços de inspeção sanitária; e
e) acompanhamento de quadro clínico ou subclínico dos trabalhadores, conforme Programa de Controle Médico de Saúde Ocupacional (PCMSO).
36.9.4.2 Caso seja identificada exposição a agente biológico prejudicial à saúde do trabalhador, conforme item anterior, deverá ser efetuado o controle destes riscos, utilizando-se, no mínimo, das seguintes medidas:
a) procedimentos de limpeza e desinfecção;
b) medidas de biossegurança envolvendo a cadeia produtiva;
c) medidas adotadas no processo produtivo pela própria organização;
d) fornecimento de equipamentos de proteção individual adequados; e
e) treinamento e informação aos trabalhadores.
36.9.4.2.1 O treinamento indicado no item 36.9.4.2, alínea "e", desta NR deve contemplar:
a) os riscos gerados por agentes biológicos;
b) as medidas preventivas existentes e necessárias;
c) o uso adequado dos EPI; e
d) procedimentos em caso de acidente.
36.9.4.3 Nas atividades que possam expor o trabalhador ao contato com excrementos, vísceras e resíduos animais, devem ser adotadas medidas técnicas, administrativas e organizacionais a fim de eliminar, minimizar ou reduzir o contato direto do trabalhador com estes produtos ou resíduos.
36.9.5 Conforto térmico
36.9.5.1 Devem ser adotadas medidas preventivas individuais e coletivas - técnicas, organizacionais e administrativas, em razão da exposição em ambientes artificialmente refrigerados e ao calor excessivo, para propiciar conforto térmico aos trabalhadores.
36.9.5.1.1 As medidas de prevenção devem envolver, no mínimo:
a) controle da temperatura, da velocidade do ar e da umidade;
b) manutenção constante dos equipamentos;
c) acesso fácil e irrestrito a água fresca;
d) uso de EPI e vestimenta de trabalho compatível com a temperatura do local e da atividade desenvolvida; e
e) outras medidas de proteção visando o conforto térmico.
36.9.5.1.2 Quando as condições do ambiente forem desconfortáveis, em virtude da exposição ao calor, além do previsto no subitem 36.9.5.1.1 desta NR devem ser adotadas as seguintes medidas:
a) alternância de tarefas, buscando a redução da exposição ao calor; e
b) medidas técnicas para minimizar os esforços físicos.
36.9.5.2 Deve ser disponibilizado sistema para aquecimento das mãos próximo dos sanitários ou dos locais de fruição de pausas, quando as atividades manuais forem realizadas em ambientes frios ou exijam contato constante com superfícies e produtos frios.
36.9.5.3 Devem ser adotadas medidas de controle da ventilação ambiental para minimizar a ocorrência de correntes de ar aplicadas diretamente sobre os trabalhadores.
36.10 Equipamentos de Proteção Individual e Vestimentas de Trabalho
36.10.1 Os Equipamentos de Proteção Individual (EPI) devem ser selecionados de forma a oferecer eficácia necessária para o controle da exposição ao risco e o conforto, atendendo o previsto nas NR-6 (Equipamentos de Proteção Individual) e NR-1.
36.10.1.1 Os EPI usados concomitantemente, tais como capacete com óculos e/ou proteção auditiva, devem ser compatíveis entre si, confortáveis e não acarretar riscos adicionais.
36.10.1.2 Nas atividades com exposição ao frio devem ser fornecidas meias limpas e higienizadas diariamente.
36.10.1.3 As luvas devem ser:
a) compatíveis com a natureza das tarefas, com as condições ambientais e o tamanho das mãos dos trabalhadores;
b) substituídas, quando necessário, a fim de evitar o comprometimento de sua eficácia.
36.10.1.4 Nas atividades em que as mãos dos trabalhadores ficam totalmente molhadas e não seja possível a utilização de luvas em razão da geração de riscos adicionais, deve ser efetuado rodízio com outras tarefas.
36.10.2 A organização deve fornecer vestimentas de trabalho, nos termos da NR-24 (Condições Sanitárias e de Conforto nos Locais de Trabalho), de maneira que:
a) os trabalhadores possam dispor de mais de uma peça de vestimenta, para utilizar de maneira sobreposta, a seu critério, e em função da atividade e da temperatura do local, atendendo às características higiênico-sanitárias legais e ao conforto térmico;
b) as extremidades sejam compatíveis com a atividade e o local de trabalho; e
c) sejam substituídas conforme sua vida útil ou sempre que danificadas a fim de evitar o comprometimento de sua eficácia.
36.10.2.1 As vestimentas devem ser trocadas diariamente, sendo sua higienização responsabilidade da organização.
36.11 Gerenciamento dos riscos ocupacionais
36.11.1 A organização deve colocar em prática uma abordagem planejada, estruturada e global da prevenção, por meio do gerenciamento de riscos ocupacionais, de acordo com a NR-1, utilizando-se de todos os meios técnicos, organizacionais e administrativos para assegurar o bem-estar dos trabalhadores e garantir que os ambientes e condições de trabalho sejam seguros e saudáveis.
36.11.2 A estratégia de prevenção em segurança e saúde no trabalho e meio ambiente de trabalho deve:
a) integrar as ações de prevenção às atividades de gestão e à dinâmica da produção, levando-se em consideração a competência e experiência dos trabalhadores e de um representante indicado pelo sindicato da categoria preponderante, a fim de aperfeiçoar de maneira contínua os níveis de proteção e desempenho no campo da segurança e saúde no trabalho; e
b) integrar a prevenção nas atividades de informação e treinamento dos trabalhadores, incluindo os níveis gerenciais e de acordo com a NR-1.
36.11.3 No planejamento da prevenção devem ser definidos métodos, técnicas e ferramentas adequadas para a avaliação de riscos, incluindo parâmetros e critérios necessários para tomada de decisão.
36.11.4 A avaliação dos riscos tem como objetivo introduzir medidas de prevenção para a sua eliminação ou redução, assim como para determinar se as medidas previstas ou existentes são adequadas, de forma a minimizar o impacto desses riscos à segurança e saúde dos trabalhadores.
36.11.5 As ações de avaliação, controle e monitoração dos riscos devem:
a) constituir um processo contínuo e interativo;
b) integrar todos os programas de prevenção e controle previstos nas demais NR; e
c) abranger a consulta e a comunicação às partes envolvidas, com participação dos trabalhadores.
36.11.6 As ações em SST devem abranger todos os riscos à segurança e saúde e abordar, no mínimo:
a) riscos gerados por máquinas, equipamentos, instalações, eletricidade, incêndios, entre outros;
b) riscos gerados pelo ambiente de trabalho, entre eles os decorrentes da exposição a agentes físicos, químicos e biológicos, como definidos na NR-9 (Avaliação e Controle das Exposições Ocupacionais a Agentes Físicos, Químicos e Biológicos); e
c) riscos de natureza ergonômica e outros gerados pela organização do trabalho.
36.11.7 As medidas de prevenção devem ser implementadas, ouvidos os trabalhadores, de acordo com a hierarquia das medidas previstas na alínea "g" do item 1.4.1 da NR-1.
36.11.8 A implementação de projetos de novas instalações, métodos ou processos de trabalho, ou de modificação dos já existentes e das medidas de prevenção, deve envolver a análise das repercussões sobre a segurança e saúde dos trabalhadores.
36.11.9 Quando ocorrer a implementação ou introdução de alterações nos ambientes e nos processos de trabalho deve-se assegurar que os trabalhadores envolvidos tenham sido adequadamente informados e treinados.
36.12 Programa de Gerenciamento de Riscos e Programa de Controle Médico de Saúde Ocupacional
36.12.1 O Programa de Gerenciamento de Riscos (PGR) e o Programa de Controle Médico de Saúde Ocupacional (PCMSO) devem estar articulados entre si e com as demais normas de segurança e saúde no trabalho, em particular com a NR-17 (Ergonomia).
36.12.2 Para fins de elaboração de programas preventivos devem ser considerados, além do previsto no item 17.4.4 da NR-17, entre outros, os seguintes aspectos da organização do trabalho:
a) compatibilização das metas com as condições de trabalho e tempo oferecidas; e
b) previsão de períodos suficientes para adaptação e readaptação de trabalhadores à atividade.
36.12.3 Deve ser utilizado, no PCMSO, instrumental clínico-epidemiológico que oriente as medidas a serem implementadas no PGR e nos programas de melhorias ergonômicas e de condições gerais de trabalho, por meio de tratamento de informações coletivas e individuais, incluindo no mínimo as ações previstas no item 7.3.2.1 da NR-7 (PCMSO).
36.12.4 O médico responsável pelo PCMSO deve informar ao empregador e aos responsáveis pelo PGR, as situações geradoras de riscos aos trabalhadores, especialmente quando observar, no controle médico ocupacional, nexo causal entre as queixas, as lesões e os agravos à saúde dos trabalhadores e as situações de trabalho a que ficam expostos.
36.12.5 Deve ser implementado um Programa de Conservação Auditiva, para os trabalhadores expostos a níveis de pressão sonora acima dos níveis de ação, conforme informado no PGR, e contendo no mínimo:
a) controles técnicos e administrativos da exposição ao ruído;
b) monitoramento periódico da exposição e das medidas de controle;
c) treinamento e informação aos trabalhadores, de acordo com NR-1;
d) determinação dos EPI;
e) audiometrias conforme Anexo II da NR-7; e
f) histórico clínico e ocupacional do trabalhador.
36.12.6 O responsável pelo PCMSO deve elaborar o relatório analítico, anualmente, considerando a data do último relatório, com os dados da evolução clínica e epidemiológica dos trabalhadores, contemplando as medidas administrativas e técnicas a serem adotadas quando evidenciado o nexo causal entre as alterações detectadas nos exames e a atividade exercida.
36.12.6.1 As medidas propostas pelo Médico do Trabalho devem ser apresentadas e discutidas com os responsáveis pelo PGR, com os responsáveis pelas melhorias ergonômicas na organização e com membros da Comissão Interna de Prevenção de Acidentes e de Assédio (CIPA).
36.12.7 O relatório analítico do PCMSO, além do previsto na NR-7, deve discriminar número e duração de afastamentos do trabalho, estatísticas de queixas dos trabalhadores, estatísticas de alterações encontradas em avaliações clínicas e exames complementares, com a indicação dos setores e postos de trabalho respectivos.
36.12.8 Sendo constatados a ocorrência ou o agravamento de doenças ocupacionais, através de exames médicos que incluam os definidos na NR-7 ou alteração que revele disfunção orgânica por meio dos exames complementares do Quadro 2 do Anexo I da NR-7, dos demais Anexos da NR-7 ou dos exames complementares incluídos com base no item 7.5.18 da NR-7, mesmo sem sintomatologia, cabe à organização, após informada pelo médico responsável pelo PCMSO, adotar as medidas previstas nas alíneas do subitem 7.5.19.5 da NR-7.
36.12.9 Cabe ao empregador, conforme orientação do médico responsável pelo PCMSO, proceder, quando necessário, à readaptação funcional em atividade compatível com o grau de incapacidade apresentada pelo trabalhador.
36.12.10 Além do disposto nos subitens 1.5.5.3 e 1.5.5.4 da NR-1, no PGR devem ser estabelecidos critérios e mecanismos de avaliação da eficácia das medidas de prevenção implantadas, considerando os dados obtidos nas avaliações e estudos realizados e no controle médico de saúde ocupacional.
36.13 Organização temporal do trabalho
36.13.1 Para os trabalhadores que exercem suas atividades em ambientes artificialmente frios e para os que movimentam mercadorias do ambiente quente ou normal para o frio e vice-versa, depois de uma hora e quarenta minutos de trabalho contínuo, será assegurado um período mínimo de vinte minutos de repouso, nos termos do Art. 253 da CLT.
36.13.1.1 Considera-se artificialmente frio, o que for inferior, na primeira, segunda e terceira zonas climáticas a 15 °C (quinze graus celsius), na quarta zona a 12 °C (doze graus celsius), e nas zonas quinta, sexta e sétima, a 10 °C (dez graus celsius), conforme mapa oficial do Instituto Brasileiro de Geografia e Estatística (IBGE).
36.13.2 Para os trabalhadores que desenvolvem atividades exercidas diretamente no processo produtivo, ou seja, desde a recepção até a expedição, onde são exigidas repetitividade e/ou sobrecarga muscular estática ou dinâmica do pescoço, ombros, dorso e membros superiores e inferiores, devem ser asseguradas pausas psicofisiológicas distribuídas, no mínimo, de acordo com o seguinte quadro 1:
QUADRO 1
|
JORNADA DE TRABALHO |
Tempo de tolerância para aplicação da pausa |
TEMPO DE PAUSA |
|
até 6h |
Até 6h20 |
20 MINUTOS |
|
até 7h20 |
Até 7h40 |
45 MINUTOS |
|
até 8h48 |
Até 9h10 |
60 MINUTOS |
36.13.2.1 Caso a jornada ultrapasse 6h20, excluído o tempo de troca de uniforme e de deslocamento até o setor de trabalho, deve ser observado o tempo de pausa da jornada de até 7h20.
36.13.2.2 Caso a jornada ultrapasse 7h40, excluído o tempo de troca de uniforme e de deslocamento até o setor de trabalho, deve ser observado o tempo de pausa da jornada de até 8h48.
36.13.2.3 Caso a jornada ultrapasse 9h10, excluído o tempo de troca de uniforme e de deslocamento até o setor de trabalho, deve ser concedida pausa de 10 minutos após as 8h48 de jornada.
36.13.2.3.1 Caso a jornada ultrapasse 9h58, excluído o tempo de troca de uniforme e de deslocamento até o setor de trabalho, devem ser concedidas pausas de 10 minutos a cada 50 minutos trabalhados.
36.13.2.4 A organização deve medir o tempo de troca de uniforme e de deslocamento até o setor de trabalho e consigná-lo no PGR ou nos relatórios ergonômicos.
36.13.2.4.1 Caso a organização não registre o tempo indicado nos documentos citados no subitem 36.13.2.4 desta NR, presume-se, para fins de aplicação da tabela prevista no Quadro 1 do item 36.13.2 desta NR, os registros de ponto do trabalhador.
36.13.2.5 Os períodos unitários das pausas, distribuídas conforme Quadro 1 do item 36.13.2 desta NR, devem ser de no mínimo 10 minutos e máximo 20 minutos.
36.13.2.6 A distribuição das pausas deve ser de maneira a não incidir na primeira hora de trabalho, contíguo ao intervalo de refeição e no final da última hora da jornada.
36.13.3 Constatadas a simultaneidade das situações previstas nos itens 36.13.1 e 36.13.2 desta NR, não deve haver aplicação cumulativa das pausas previstas nestes itens.
36.13.4 Devem ser computadas como trabalho efetivo as pausas previstas nesta NR.
36.13.5 Para que as pausas possam propiciar a recuperação psicofisiológica dos trabalhadores, devem ser observados os seguintes requisitos:
a) a introdução de pausas não pode ser acompanhada do aumento da cadência individual;
b) as pausas previstas no item 36.13.1 desta NR devem ser obrigatoriamente usufruídas fora dos locais de trabalho, em ambientes que ofereçam conforto térmico e acústico, disponibilidade de bancos ou cadeiras e água potável; e
c) as pausas previstas no item 36.13.2 desta NR devem ser obrigatoriamente usufruídas fora dos postos de trabalho, em local com disponibilidade de bancos ou cadeiras e água potável;
36.13.6 A participação em quaisquer modalidades de atividade física, quando ofertada pela organização, pode ser realizada apenas em um dos intervalos destinado a pausas, não sendo obrigatória a participação do trabalhador, e a sua recusa em praticá-la não é passível de punição.
36.13.7 No local de repouso deve existir relógio de fácil visualização pelos trabalhadores, para que eles possam controlar o tempo das pausas.
36.13.8 Fica facultado o fornecimento de lanches durante a fruição das pausas, resguardadas as exigências sanitárias.
36.13.9 As saídas dos postos de trabalho para satisfação das necessidades fisiológicas dos trabalhadores devem ser asseguradas a qualquer tempo, independentemente da fruição das pausas.
36.14 Organização das atividades
36.14.1 Devem ser adotadas medidas técnicas de engenharia, organizacionais e administrativas com o objetivo de eliminar ou reduzir os riscos, especialmente a repetição de movimentos dos membros superiores.
36.14.1.1 A organização deve elaborar um cronograma com prazos para implementação de medidas que visem promover melhorias e, sempre que possível, adequações no processo produtivo nas situações de risco identificado.
36.14.2 A organização das tarefas deve ser efetuada com base em estudos e procedimentos de forma a atender os seguintes objetivos:
a) a cadência requerida na realização de movimentos de membros superiores e inferiores não deve comprometer a segurança e a saúde dos trabalhadores;
b) as exigências de desempenho devem ser compatíveis com as capacidades dos trabalhadores, de maneira a minimizar os esforços físicos estáticos e dinâmicos que possam comprometer a sua segurança e saúde;
c) o andamento da atividade deve ser efetuado de forma menos árdua e mais confortável aos trabalhadores; e
d) facilitar a comunicação entre trabalhadores, entre trabalhadores e supervisores, e com outros setores afins.
36.14.3 A organização deve possuir contingente de trabalhadores em atividade, compatível com as demandas e exigências de produção, bem como mecanismos para suprir eventuais faltas de trabalhadores, e exigências relacionadas ao aumento de volume de produção, de modo a não gerar sobrecarga excessiva aos trabalhadores.
36.14.4 Mudanças significativas no processo produtivo com impacto no dimensionamento dos efetivos devem ser efetuadas com a participação dos Serviços Especializados Segurança e em Medicina do Trabalho (SESMT) e da CIPA, em conjunto com os supervisores imediatos.
36.14.5 Na organização do processo e na velocidade da linha de produção deve ser considerada a variabilidade temporal requerida por diferentes demandas de produção e produtos, devendo ser computados, pelo menos, os tempos necessários para atender as seguintes tarefas:
a) afiação/chairação das facas;
b) limpeza das mesas; e
c) outras atividades complementares à tarefa, tais como mudança de posto de trabalho, troca de equipamentos e ajuste dos assentos.
36.14.6 Os mecanismos de monitoramento da produtividade ou outros aspectos da produção não podem ser usados para aceleração do ritmo individual de trabalho para além dos limites considerados seguros.
36.14.7 Rodízios
36.14.7.1 A organização, observados os aspectos higiênico-sanitários, deve implementar rodízios de atividades dentro da jornada diária que propicie o atendimento de pelo menos uma das seguintes situações:
a) alternância das posições de trabalho, tais como postura sentada com a postura em pé;
b) alternância dos grupos musculares solicitados;
c) alternância com atividades sem exigências de repetitividade;
d) redução de exigências posturais, tais como elevações, flexões/extensões extremas dos segmentos corporais, desvios cúbitos-radiais excessivos dos punhos, entre outros;
e) redução ou minimização dos esforços estáticos e dinâmicos mais frequentes;
f) alternância com atividades cuja exposição ambiental ao ruído, umidade, calor, frio, seja mais confortável;
g) redução de carregamento, manuseio e levantamento de cargas e pesos; e
h) redução da monotonia.
36.14.7.1.1 A alternância de atividades deve ser efetuada, sempre que possível, entre as tarefas com cadência estabelecida por máquinas, esteiras, nórias e outras tarefas em que o trabalhador possa determinar livremente seu ritmo de trabalho.
36.14.7.1.2 Os trabalhadores devem estar treinados para as diferentes atividades que irão executar.
36.14.7.2 Os rodízios devem ser definidos pelos profissionais do SESMT e implantados com a participação da CIPA e dos trabalhadores envolvidos.
36.14.7.3 O SESMT e o Comitê de Ergonomia da organização, quando houver, devem avaliar os benefícios dos rodízios implantados e monitorar a eficácia dos procedimentos na redução de riscos e queixas dos trabalhadores, com a participação dos mesmos.
36.14.7.4 Os rodízios não substituem as pausas para recuperação psicofisiológica previstas nesta NR.
36.14.8 Aspectos psicossociais
36.14.8.1 Os superiores hierárquicos diretos dos trabalhadores devem ser treinados para buscar no exercício de suas atividades:
a) facilitar a compreensão das atribuições e responsabilidades de cada função;
b) manter aberto o diálogo de modo que os trabalhadores possam sanar dúvidas quanto ao exercício de suas atividades;
c) facilitar o trabalho em equipe;
d) conhecer os procedimentos para prestar auxílio em caso de emergência ou mal-estar; e
e) estimular tratamento justo e respeitoso nas relações pessoais no ambiente de trabalho.
36.15 Avaliação das situações de trabalho
36.15.1 Deve ser realizada Avaliação Ergonômica Preliminar (AEP) e/ou Análise Ergonômica do Trabalho (AET), nos termos da NR-17, para avaliar a adaptação das condições de trabalho às características psicofisiológicas dos trabalhadores e subsidiar a implementação das medidas de prevenção e adequações necessárias previstas na NR-36.
36.15.2 As análises ergonômicas do trabalho devem incluir as etapas previstas no item 17.3.3 da NR-17.
36.15.2.1 Deve ser realizada a discussão e divulgação dos resultados da AET com os trabalhadores e instâncias hierárquicas envolvidas, assim como apresentação e discussão na CIPA.
36.16 Informações e treinamentos em segurança e saúde no trabalho
36.16.1 A organização deve informar, nos termos da NR-1, a todos os trabalhadores sobre os riscos relacionados ao trabalho, suas causas potenciais, efeitos sobre a saúde e medidas de prevenção, inclusive quanto ao uso de EPI quando recomendado.
36.16.1.1 Os superiores hierárquicos, cuja atividade influencie diretamente na linha de produção operacional devem ser informados sobre:
a) os eventuais riscos existentes;
b) as possíveis consequências dos riscos para os trabalhadores;
c) a importância da gestão dos problemas; e
d) os meios de comunicação adotados pela organização na relação empregado-empregador.
36.16.1.2 Os trabalhadores devem estar treinados e suficientemente informados sobre:
a) os métodos e procedimentos de trabalho;
b) o uso correto e os riscos associados à utilização de equipamentos e ferramentas;
c) as variações posturais e operações manuais que ajudem a prevenir a sobrecarga osteomuscular e reduzir a fadiga, especificadas na AET;
d) os riscos existentes e as medidas de controle;
e) o uso de EPI e suas limitações; e
f) as ações de emergência.
36.16.1.3 Os trabalhadores que efetuam limpeza e desinfecção de materiais, equipamentos e locais de trabalho devem, além do exposto acima, receber informações sobre os eventuais fatores de risco das atividades, quando aplicável, sobre:
a) agentes ambientais físicos, químicos, biológicos;
b) riscos de queda;
c) riscos biomecânicos;
d) riscos gerados por máquinas e seus componentes; e
e) uso de equipamentos e ferramentas.
36.16.2 As informações e treinamentos devem incluir, além do abordado anteriormente, no mínimo, os seguintes itens:
a) noções sobre os fatores de risco para a segurança e saúde nas atividades;
b) medidas de prevenção indicadas para minimizar os riscos relacionados ao trabalho;
c) informações sobre riscos, sinais e sintomas de danos à saúde que possam estar relacionados às atividades do setor;
d) instruções para buscar atendimento clínico no serviço médico da organização ou terceirizado, sempre que houver percepção de sinais ou sintomas que possam indicar agravos a saúde;
e) informações de segurança no uso de produtos químicos, quando necessário, incluindo, no mínimo, dados sobre os produtos, grau de nocividade, forma de contato, procedimentos para armazenamento e forma adequada de uso; e
f) informações sobre a utilização correta dos mecanismos de ajuste do mobiliário e dos equipamentos dos postos de trabalho, incluindo orientação para alternância de posturas.
36.16.3 Em todas as etapas dos processos de trabalhos com animais que antecedem o serviço de inspeção sanitária, devem ser disponibilizadas aos trabalhadores informações sobre:
a) formas corretas e locais adequados de aproximação, contato e imobilização;
b) maneiras de higienização pessoal e do ambiente; e
c) precauções relativas a doenças transmissíveis.
36.16.4 Deve ser realizado treinamento inicial, antes de o trabalhador iniciar suas funções, com, no mínimo, quatro horas de duração.
36.16.4.1 Deve ser realizado treinamento periódico anual com carga horária de, no mínimo, duas horas.
36.16.5 Os trabalhadores devem receber treinamento eventual nos termos do subitem 1.7.1.2.3 da NR-1.
36.16.6 A elaboração do conteúdo, a execução e a avaliação dos resultados dos treinamentos em segurança e saúde no trabalho devem contar com a participação de:
a) representante da organização com conhecimento técnico sobre o processo produtivo;
b) integrantes do SESMT, quando houver;
c) membros da CIPA;
d) médico responsável pelo PCMSO; e
e) responsáveis pelo PGR.
36.16.6.1 A organização deve disponibilizar material contendo, no mínimo, o conteúdo dos principais tópicos abordados nos treinamentos aos trabalhadores e, quando solicitado, disponibilizar ao representante sindical.
36.16.6.1.1 A representação sindical pode encaminhar sugestões para melhorias dos treinamentos ministrados pelas organizações e tais sugestões devem ser analisadas.
36.16.7 As informações de segurança e saúde no trabalho devem ser disponibilizadas aos trabalhadores que prestam serviços à organização.
1. Abate e processamento de carnes e derivados: abate de bovinos e suínos, aves, pescados e outras espécies animais, realizado para obtenção de carne e de seus derivados.
2. Derivados de produtos de origem animal: produtos e subprodutos, comestíveis ou não, elaborados no todo ou em parte.
3. Estabelecimentos de carnes e derivados - os estabelecimentos de carnes e derivados são classificados em:
a) Matadouro-frigorífico: estabelecimento dotado de instalações completas e equipamentos adequados para o abate, manipulação, elaboração, preparo e conservação das espécies de açougue sob variadas formas, com aproveitamento completo, racional e perfeito, de subprodutos não comestíveis; possui instalações de frio industrial.
b) Matadouro: estabelecimento dotado de instalações adequadas para a matança de quaisquer das espécies de açougue, visando o fornecimento de carne em natureza ao comércio interno, com ou sem dependências para industrialização; deve dispor obrigatoriamente, de instalações e aparelhagem para o aproveitamento completo e perfeito de todas as matérias-primas e preparo de subprodutos não comestíveis.
c) Matadouro de pequenos e médios animais - estabelecimento dotado de instalações para o abate e industrialização de: Suínos; Ovinos; Caprinos; Aves e Coelhos; Caça de pelo, dispondo de frio industrial.
d) Charqueada: estabelecimento que realiza matança com o objetivo principal de produzir charque, dispondo obrigatoriamente de instalações próprias para o aproveitamento integral e perfeito de todas as matérias-primas e preparo de subprodutos não comestíveis;
e) Fábrica de conservas: estabelecimento que industrialize a carne de variadas espécies de açougue, com ou sem sala de matança anexa, e em qualquer dos casos seja dotado de instalações de frio industrial e aparelhagem adequada para o preparo de subprodutos não comestíveis.
f) Fábrica de produtos suínos: estabelecimento que disponha de sala de matança e demais dependências, industrialize animais da espécie suína e, em escala estritamente necessária aos seus trabalhos, animais de outras espécies; disponha de instalações de frio industrial e aparelhagem adequada ao aproveitamento completo de subprodutos não comestíveis.
g) Fábrica de produtos gordurosos: os estabelecimentos destinados exclusivamente ao preparo de gorduras, excluída a manteiga, adicionadas ou não de matérias-primas de origem vegetal.
h) Entreposto de carnes e derivados: estabelecimento destinado ao recebimento, guarda, conservação, acondicionamento e distribuição de carnes frescas ou frigorificadas das diversas espécies de açougue e outros produtos animais, dispondo ou não de dependências anexas para a industrialização.
i) Fábricas de produtos não comestíveis: estabelecimento que manipula matérias-primas e resíduos de animais de várias procedências, para preparo exclusivo de produtos não utilizados na alimentação humana.
j) Matadouro de aves e coelhos: estabelecimento dotado de instalações para o abate e industrialização de: Aves e caça de penas; Coelhos, dispondo de frio industrial.
k) Entreposto-frigorífico: estabelecimento destinado, principalmente, à estocagem de produtos de origem animal pelo emprego de frio industrial.
4. Carcaça:
a) Bovinos: animais abatidos, formados das massas musculares e ossos, desprovidos de cabeça, mocotós, cauda, couro, órgãos e vísceras torácicas e abdominais, tecnicamente preparados;
b) Suínos: animais abatidos, formados das massas musculares e ossos, desprovidos de mocotós, cauda, órgãos e vísceras torácicas e abdominais, tecnicamente preparados, podendo ou não incluir couro, cabeça e pés;
c) Aves: corpo inteiro do animal após insensibilização, ou não, sangria, depenagem e evisceração, onde papo, traqueia, esôfago, intestinos, cloaca, baço, órgãos reprodutores e pulmões tenham sido removidos. É facultativa a retirada dos rins, pés, pescoço e cabeça.
5. Corte: parte ou fração da carcaça, com limites previamente especificados, com osso ou sem osso, com pele ou sem pele, temperado ou não, sem mutilações e/ou dilacerações.
6. Recorte: parte ou fração de um corte.
7. Produtos gordurosos: são os que resultam do aproveitamento de tecidos animais, por fusão ou por outros processos aprovados.
8. Graxaria: seção destinada ao aproveitamento de matérias-primas gordurosas e de subprodutos não comestíveis. A graxaria compreende a seção de produtos gordurosos comestíveis; seção de produtos gordurosos não comestíveis; seção de subprodutos não comestíveis. Processam subprodutos e/ou resíduos dos abatedouros ou frigoríficos e de casas de comercialização de carnes (açougues), como sangue, ossos, cascos, chifres, gorduras, aparas de carne, animais ou suas partes condenadas pela inspeção sanitária e vísceras não comestíveis. Seus produtos principais são o sebo ou gordura animal (para a indústria de sabões/sabonetes, de rações animais e para a indústria química) e farinhas de carne e ossos (para rações animais). Há graxarias que também produzem sebo ou gordura e/ou o chamado adubo organo-mineral somente a partir de ossos. Podem ser anexas aos abatedouros e frigoríficos ou unidades de negócio independentes.
9. BPF - Boas Práticas de Fabricação para estabelecimentos que processam produtos de origem animal: são procedimentos necessários para obtenção de alimentos inócuos, saudáveis e sãos.
10. Ambientes climatizados: espaços fisicamente determinados e caracterizados por dimensões e instalações próprias, submetidos ao processo de climatização, através de equipamentos.
11. Aerodispersóides: sistema disperso, em um meio gasoso, composto de partículas sólidas e/ou líquidas. O mesmo que aerosol ou aerossol.
12. Ar de renovação: ar externo que é introduzido no ambiente climatizado.
13. Ar condicionado: processo de tratamento do ar, destinado a manter os requisitos de qualidade do ar interior do espaço condicionado, controlando variáveis, como a temperatura, umidade, velocidade, material particulado, partículas biológicas e teor de dióxido de carbono (CO2).
14. Avaliação de riscos: processo geral, abrangente e amplo de identificação, análise e valoração, para definir ações de controle e monitoração.
15. Características psicofisiológicas: englobam o que constitui o caráter distintivo, particular de uma pessoa, incluindo suas capacidades sensitivas, motoras, psíquicas e cognitivas, destacando, entre outras, questões relativas aos reflexos, à postura, ao equilíbrio, à coordenação motora e aos mecanismos de execução dos movimentos que variam intra e inter indivíduos. Inclui, no mínimo, o conhecimento antropológico, psicológico, fisiológico relativo ao ser humano. Englobam, ainda, temas como níveis de vigilância, sono, motivação e emoção; memória e aprendizagem.
16. Climatização: conjunto de processos empregados para se obter por meio de equipamentos em recintos fechados, condições específicas de conforto e boa qualidade do ar, adequadas ao bem-estar dos ocupantes.
17. Continente: também chamado de contentor, é todo o material que envolve ou acondiciona o alimento, total ou parcialmente, para comércio e distribuição como unidade isolada.
18. COV's: compostos orgânicos voláteis, responsáveis por odores desagradáveis (existentes principalmente nas graxarias).
19. Demanda ergonômica: observação do contexto geral do processo produtivo da empresa e a evidência de seus disfuncionamentos, não devendo se restringir apenas a dores, sofrimento e doenças.
20. Desinfecção: é a redução por intermédio de agentes químicos ou métodos físicos adequados, do número de micro-organismos no prédio, instalações, maquinaria, utensílios, ao nível que impeça a contaminação do alimento que se elabora.
21. Equipamentos: maquinaria e demais utensílios utilizados nos estabelecimentos.
22. Padrão Referencial de Qualidade do Ar Interior: marcador qualitativo e quantitativo de qualidade do ar ambiental interior, utilizado como sentinela para determinar a necessidade da busca das fontes poluentes ou das intervenções ambientais.
23. Qualidade do Ar Ambiental Interior: Condição do ar ambiental de interior, resultante do processo de ocupação de um ambiente fechado com ou sem climatização artificial.
24. Resfriamento: processo de refrigeração e manutenção da temperatura entre 0 °C (zero grau celsius) e 4 °C (quatro graus celsius) dos produtos (carcaças, cortes ou recortes, miúdos e/ou derivados), com tolerância de 1 °C (um grau celsius) medidos no interior dos mesmos.
25. Risco: possibilidade ou chance de ocorrerem danos à saúde ou integridade física dos trabalhadores, devendo ser identificado em relação aos eventos ou exposições possíveis e suas consequências potenciais.
26. Serviço de Inspeção Sanitária: serviço de inspeção federal (SIF), estadual e municipal.
27. Subprodutos e/ou resíduos: couros, sangue, ossos, gorduras, aparas de carne, tripas, animais ou suas partes condenadas pela inspeção sanitária etc. que devem passar por processamentos específicos.
28. Triparia: departamento destinado à manipulação, limpeza e preparo para melhor apresentação ou subsequente tratamento dos órgãos e vísceras retiradas dos animais abatidos. São considerados produtos de triparia as cabeças, miolos, línguas, mocotós, esôfagos e todas as vísceras e órgãos, torácicos e abdominais, não rejeitados pela Inspeção Federal.
29. Valor Máximo Recomendável: Valor limite recomendável que separa as condições de ausência e de presença do risco de agressão à saúde humana.
30. Valoração dos riscos: a valoração do risco refere-se ao processo de comparar a magnitude ou nível do risco em relação a critérios previamente definidos para estabelecer prioridades e fundamentar decisões sobre o controle/tratamento do risco.
31. Agentes Biológicos: Para fins de aplicação desta norma, consideram-se agentes biológicos prejudiciais aqueles que pela sua natureza ou intensidade são capazes de produzir danos à saúde dos trabalhadores.
32. Boa qualidade do ar interno: conjunto de propriedades físicas, químicas e biológicas do ar que não apresentem agravos à saúde humana.
33. Isolamento térmico: Propriedade de um material, usado na vestimenta, de reduzir as trocas térmicas entre o corpo e o ambiente. No caso dos ambientes frios, de reduzir a perda de calor. A eficácia do isolamento da vestimenta depende das propriedades isolantes do tecido e da adaptação às diferentes partes do corpo.
34. Cilindro dentado - Eixo com dentes e ranhuras de raspagem para o arraste do produto. Cilindro que tem estrias circunferenciais, conforme características constantes no item 1.2.3.3 do Anexo II da NR-36.
35. Cilindro de arraste - Eixo com dentes e uma disposição ondulada sem ranhuras de raspagem para o arraste do produto. Cilindro com ranhuras longitudinais, sem estrias circunferenciais, conforme características constantes no item 1.2.3.4 do Anexo II da NR-36.
.
(Anexo acrescentado pela Portaria MTPS Nº 511 DE 29/04/2016):
Anexo II - Requisitos de segurança específicos para máquinas utilizadas nas indústrias de abate e processamento de carnes e derivados destinados ao consumo humano.
(Redação dada pela Portaria MTB Nº 99 DE 08/02/2018):
1. Para fins do atendimento do item 36.7.1 desta Norma, estão abrangidos no presente anexo as seguintes máquinas de uso exclusivo na indústria de abate e processamento de carnes de derivados destinados ao consumo humano:
I - Máquina automática para descourear e retirar pele e película;
II - Máquina aberta para descourear e retirar pele;
III - Máquina de repasse de moela;
V - Máquina para corte de carcaças de animais de médio e grande porte. (Inciso acrescentado pela Portaria MTB Nº 1087 DE 18/12/2018).
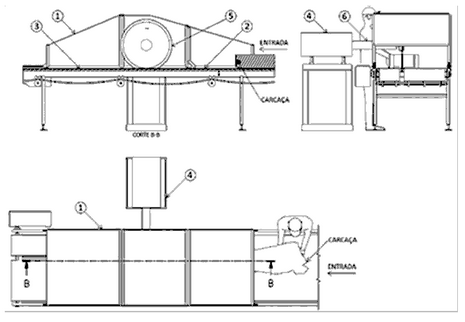
1.1. A máquina automática para descourear e retirar pele e película de carnes destinadas ao consumo humano é definida para fins deste anexo como a máquina com cilindros de tração e lâmina utilizada para descourear e retirar a pele e a película de carnes, com alimentação por esteira transportadora, sistema de retenção e esteira de descarga, conforme exemplificado nas figuras 1 e 2.
1.1.1. A máquina deve ser utilizada dentro dos limites estabelecidos no manual de instruções.
Figura 1 - Máquina automática de descourear e retirar pele e película
Legenda:
1. Esteira transportadora de descarga (saída do produto);
2. Proteção móvel;
3. Cilindros de retenção;
4. Suporte da lâmina;
5. Lâmina;
6. Cilindro dentado ou de transporte;
7. Esteira transportadora de alimentação;
8. Carenagem/Sistema motriz.
Fonte: Norma Técnica EN 12355:2003 + A1: 2010
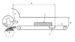
Figura 2 - Detalhe do sistema de corte e transporte de uma máquina automática de descourear e retirar pele e película
Legenda:
1. Cilindro de retenção;
2. Esteira transportadora para alimentação;
3. Produto;
4. Cilindro dentado tracionado;
5. Raspador;
6. Lâmina;
7. Suporte da lâmina;
8. Esteira transportadora de descarga (saída do produto).
Fonte: Norma Técnica EN 12355:2003 + A1: 2010
1.1.2. Os perigos mecânicos (figura 3) e os requisitos de segurança abrangidos neste anexo se referem ao tipo de máquina descrita no item 1.1 e seus limites de aplicação.
1.1.2.1. Deve ser realizada uma prévia avaliação de risco da máquina, após a sua instalação, longo período de inatividade ou quando ocorrer mudança do processo operacional, em relação ao trabalhador, para evitar riscos adicionais oriundos do processo e das condições do ambiente de trabalho.
Figura 3 - Zonas de perigo da máquina automática de descourear e retirar pele e película
(3).png)
Legenda:
1. Zona 1 - zona de retenção e corte;
2. Zona 2 - zona de alimentação;
3. Zona 3 - zona de descarga;
4. Zona 4 - zona movimentação da esteira;
5. Zona 5 - Zona motriz;
6. Zona 6 - zona do sistema de rodízio para facilitar o transporte;
H - Altura da superfície da esteira de alimentação e de descarga em relação ao solo.
Fonte: Norma Técnica EN 12355:2003 + A1: 2010
1.1.3. O acesso às zonas de perigo 1, 2 e 3 deve ser impedido por meio de proteção móvel intertravada, monitorada por interface de segurança, conforme os itens 12.38 a 12.55 da NR-12, devendo ainda o acesso às zonas 2 e 3 atender às dimensões indicadas na tabela 1 e figuras 4 e 5 deste anexo.
1.1.3.1. O movimento de risco dos cilindros deve cessar totalmente em um período de tempo de até dois segundos quando a proteção móvel intertravada for aberta.
1.1.3.2. A proteção móvel deve ser projetada de forma que possa ser movimentada pelo trabalhador com uma força menor do que 50N (newton).
Tabela 1 - Relação entre a altura da abertura B e a distância A iniciando na área de contato (medidas em milímetros)
| A | > = | 230 | 450 | 550 |
| B | < = | 40 | 95 | 120 |
A = Distância até a área de contato.
B = Altura da abertura, incluída a distância de controle, na borda frontal da proteção ou da barra de desconexão.
Figura 4 - Vista das zonas de perigo 1 e 2 para aplicação da tabela 1
Legenda:
1. Produto;
2. Ancinho raspador;
3. Barra fixa.
Fonte: Norma Técnica EN 12355:2003 + A1: 2010
Figura 5 - Vista das zonas de perigo 1 e 3 para aplicação da tabela 1
Legenda:
1. Produto;
2. Ancinho raspador;
3. Barra fixa.
Fonte: Norma Técnica EN 12355:2003 + A1: 2010
1.1.4. O acesso à zona de perigo 4 deve ser impedido por meio de proteção móvel intertravada ou fixa, conforme os itens 12.38 a 12.55 da NR-12, para que se impeça o acesso aos movimentos perigosos dos transportadores contínuos, especialmente nos pontos de esmagamento, agarramento e aprisionamento formados pelas correias, roletes, acoplamentos e outras partes móveis das esteiras acessíveis durante a operação normal.
1.1.5. O acesso à zona de perigo 5 deve ser impedido em todas as faces por meio de proteção móvel intertravada ou fixa, conforme os itens 12.38 a 12.55 da NR-12.
1.1.6. O sistema de segurança e suas interligações devem atingir no mínimo categoria de segurança 3. (Redação dada pela Portaria MTB Nº 99 DE 08/02/2018).
1.1.7. Nas máquinas móveis que possuem rodízios, pelo menos dois deles devem possuir travas.
1.1.8. A altura "H" deve ser de 1050 mm se a altura da esteira (plano de trabalho) for fixa.
1.1.8.1. Quando a altura da esteira for regulável, a altura "H" deve permitir ajuste entre 850 mm a 1120 mm.
1.1.8.2. A altura "H" fora do padrão estabelecido nos itens 1.1.8 e 1.1.8.1 deste anexo só pode ser adotada por meio de uma análise ergonômica do trabalho (AET) do posto de trabalho.
1.1.9. Os componentes elétricos devem atender ao grau de proteção (IP), de acordo com as normas técnicas oficiais vigentes à época de publicação deste anexo.
1.1.9.1. Quando utilizado jato de pressão de água para higienização da máquina, devem ser adotadas medidas adicionais para proteger componentes elétricos externos.
II - Máquina aberta para descourear e retirar a pele e a membrana
1.2. A máquina aberta para descourear e retirar a pele e a membrana de carnes destinadas ao consumo humano é definida para fins deste anexo como a máquina com um cilindro giratório dentado ou de arraste e lâmina utilizada para descourear e retirar a pele e a membrana de carnes, de alimentação manual, sem a utilização de esteira, conforme exemplificado nas figuras 6 e 7.
1.2.1. Nas máquinas abertas para descourear e retirar a pele e a membrana somente devem ser processados produtos arredondados e grandes.
1.2.1.1. Os produtos planos somente devem ser processados em máquinas automáticas para descourear e retirar pele e película.
1.2.1.2. A máquina deve ser utilizada dentro dos limites estabelecidos no manual de instruções.
Figura 6 - Máquina aberta de descourear e de retirar a pele e a membrana
Legenda:
1. Cilindro dentado e tampa protetora;
2. Lâmina;
3. Mesa de evacuação;
4. Suporte de lâmina;
5. Mesa de alinhamento;
6. Interruptor de LIGA/DESLIGA;
7. Interruptor do pedal;
8. Sistema Motriz;
9. Dispositivo de bloqueio;
10. Altura da Mesa (H);
Fonte: Norma Técnica EN 12355:2003 + A1: 2010
Figura 7 - Sistema de uma máquina aberta de descourear e de retirar a pele e a membrana
(2).png)
Legenda:
1. Produto arredondado;
2. Espessura do corte < = 5mm (cilindro dentado) ou < = 0,5 mm (cilindro de arraste);
3. Mesa de alimentação;
4. Cilindro dentado ou de arraste;
5. Suporte de lâmina;
6. Lâmina;
7. Couro ou pele;
8. Pente de raspagem.
Fonte: Norma Técnica EN 12355:2003 + A1: 2010
1.2.2 Os perigos mecânicos (figura 8) e os requisitos de segurança abrangidos neste anexo se referem ao tipo de máquina descrita no item 1.2 e seus limites de aplicação.
1.2.2.1 Deve ser realizada uma prévia avaliação de risco da máquina, após a sua instalação, longo período de inatividade ou quando ocorrer mudança do processo operacional, em relação ao trabalhador, para evitar riscos adicionais oriundos do processo e das condições do ambiente de trabalho.
Figura 8 - Zonas de perigo da máquina aberta de descourear e retirar a pele e a membrana
Figura 9 - Detalhe das zonas de perigo 1, 2 e 3 da máquina aberta de descourear e retirar a pele e a membrana (com pente raspador)
Legenda:
1. Cilindro dentado giratório e porta lâmina ajustável na altura com a lâmina montada;
2. Cilindro dentado giratório e pente raspador;
3. Cilindro dentado giratório e as partes fixas da máquina.
Fonte: Norma Técnica EN 12355:2003 + A1: 2010
Figura 10 - Detalhe das zonas de perigo 1, 2 e 3 da máquina aberta de descourear e retirar a pele e a membrana (com cilindro raspador giratório).
Legenda:
1. Cilindro de arraste giratório e porta lâmina fixo com a lâmina montada;
2. Cilindro de arraste giratório e cilindro raspador giratório;
3. Cilindro de arraste/cilindro raspador giratórios, com as partes fixas da máquina e o dispositivo de limpeza por jato de ar.
Fonte: Norma Técnica EN 12355:2003 + A1: 2010
1.2.3. O acesso à zona de perigo 1 (área de corte e área de separação entre o cilindro dentado ou de arraste e o porta-lâmina) deve estar protegido, aplicando-se as seguintes medidas:
1.2.3.1. A distância ajustável entre o cilindro giratório dentado ou de arraste e a extremidade da borda cortante da lâmina deve ser < 5,0 mm e < 0,5 mm, respectivamente.
1.2.3.2. A lâmina e o porta-lâmina devem estar projetados de forma que a lâmina somente possa ser montada em uma única posição.
1.2.3.2.1. Quando se utiliza um dispositivo de lâmina dupla acima do porta-lâmina, o conjunto de lâmina dupla não deve formar uma área de contato com o cilindro dentado, que ocorre quando a diferença entre as bordas das lâminas for > 2 mm (ver a figura 11).
Figura 11 - Detalhe do dispositivo de lâmina dupla
Legenda:
1 - Lâmina dupla;
2 - Porta-lâmina.
Fonte: Norma Técnica EN 12355:2003 + A1: 2010.
1.2.3.3. No caso de utilização de cilindro dentado, não é permitido que o ângulo formado pela parte (peça) livre do cilindro dentado, entre a lâmina e a borda frontal da mesa, seja maior que 35º da circunferência do cilindro, para uma mesa cuja altura é compreendida entre 850 mm a 1050 mm.
1.2.3.3.1. No caso de produtos arredondados e excepcionalmente grandes, pode-se utilizar uma mesa de alimentação que permita uma parte livre do cilindro dentado não superior a 90º para uma altura da mesa > 850 mm.
1.2.3.4 No caso de utilização de cilindro de arraste, na circunferência do cilindro giratório de arraste, a distância ponto-aponto das ranhuras (fendas) longitudinais deve ser menor ou igual a 2,5 mm, a profundidade da fenda (ranhura) menor ou igual a 2,0 mm e as ranhuras não devem ter estrias circunferenciais (ver figura 12). (Redação dada pela Portaria MTB Nº 97 DE 08/02/2018).
Figura 12 - Requisitos de segurança do cilindro de arraste
Legenda:
1 - Cilindro de arraste sem estrias circunferenciais.
2 - Cilindro de arraste com estrias circunferenciais.
Fonte: Norma Técnica EN 12355:2003 + A1: 2010
1.2.3.5. O dispositivo de acionamento e parada do sistema motriz do cilindro dentado ou cilindro de arraste deve ser um comando sensível.
1.2.3.5.1. O cilindro deve parar em até dois segundos depois que o operador soltar o interruptor de comando.
1.2.3.5.2. O interruptor de comando pode ser acionado, por exemplo, com o pé, com o joelho ou com a barriga, e deve estar protegido contra qualquer acionamento involuntário.
1.2.3.5.3. O dispositivo de acionamento e parada poderá ser interligado em série com o botão de parada de emergência.
1.2.3.6. Devem-se adotar medidas para evitar o acesso de terceiros à zona de perigo 1, limitando-se o acesso apenas ao posto de trabalho do operador da máquina (acesso frontal).
1.2.3.6.1. Quando não for possível limitar o acesso por meio do posicionamento da máquina no ambiente ou da organização dos postos de trabalho, o acesso de terceiros (outras pessoas) ao cilindro dentado ou de arraste da máquina aberta para descourear e retirar a pele e a membrana deve estar protegido por proteção fixa, conforme os itens 12.38 a 12.55 da NR-12.
1.2.3.6.2. Não devem ser utilizadas luvas de malha metálica ou luvas reforçadas com arame metálico durante a operação da máquina.
1.2.4. O acesso às zonas de perigo 2, 3 e 4 deve ser impedido em todas as faces por meio de proteção móvel intertravada ou fixa, conforme os itens 12.38 a 12.55 da NR-12.
1.2.5. O sistema de segurança e suas interligações devem atingir no mínimo categoria de segurança 3. (Redação dada pela Portaria MTB Nº 99 DE 08/02/2018).
1.2.6. A altura "H" deve ser de 1050 mm se a altura da mesa de alinhamento (plano de trabalho) for fixa.
1.2.6.1. Quando a altura for regulável, a altura "H" deve permitir ajuste entre 850 mm a 1120 mm.
1.2.6.2. A altura "H" fora do padrão estabelecido nos itens 1.2.6 e 1.2.6.1 deste anexo, só pode ser adotada por meio de uma análise ergonômica do trabalho (AET) do posto de trabalho.
1.2.7. Nas máquinas móveis que possuem rodízios, pelo menos dois deles devem possuir travas.
1.2.8. Os componentes elétricos devem atender ao grau de proteção (IP), de acordo com as normas técnicas oficiais vigentes à época de publicação deste anexo.
1.2.8.1. Quando utilizado jato de pressão de água para higienização da máquina, devem ser adotadas medidas adicionais para proteger os componentes elétricos externos.
1.2.9. A máquina deve ser equipada com um dispositivo de parada de emergência, de forma que sua disposição permita o acionamento da parada de emergência dentro da área de alcance do operador.
1.2.9.1. O dispositivo de parada de emergência deve atender ao disposto na NR-12.
III - Máquina de repasse de moela
1.3. Máquina de repasse de moela é definida para fins deste Anexo como a máquina com esteira e/ou local de alimentação, cilindros dentados, local de descarga e funil de resíduo de descarga utilizada para realizar o repasse da limpeza de moelas.
1.3.1. Se a máquina de limpeza de moela for adaptada para realizar também o repasse da limpeza de moela, a máquina e suas adaptações devem atender aos requisitos de segurança previstos neste anexo.
1.3.2. Os perigos mecânicos e os requisitos de segurança abrangidos neste anexo se referem ao tipo de máquina descrita no item 1.3 e seus limites de aplicação.
1.3.2.1. Deve ser realizada uma prévia avaliação de risco da máquina em relação ao trabalhador, após a sua instalação, longo período de inatividade ou quando ocorrer mudança do processo operacional, para evitar riscos adicionais oriundos do processo e das condições do ambiente de trabalho.
1.3.2.2. O acesso à zona de perigo de operação dos cilindros deve ser impedido por meio de proteção móvel intertravada, monitorada por interface de segurança, ou fixa, conforme os itens 12.38 a 12.55 da NR-12.
1.3.2.2.1. O movimento de risco dos cilindros deve cessar totalmente em um período de tempo de até dois segundos quando a proteção móvel intertravada for aberta.
1.3.2.2.2. A proteção móvel deve ser projetada de forma que possa ser movimentada pelo trabalhador com uma força menor do que 50N (newton).
1.3.2.3. O acesso às zonas de perigo do local de alimentação, do local de descarga do produto e do funil de descarga de resíduos deve ser impedido por meio de proteção que, por sua geometria, impeça o acesso aos movimentos perigosos por meio de proteção móvel intertravada ou fixa, conforme os itens 12.38 a 12.55 da NR-12, especialmente nos pontos de esmagamento, agarramento e aprisionamento formados pelos roletes, acoplamentos e outras partes móveis acessíveis durante a operação normal.
1.3.2.3.1. As proteções contra o acesso às zonas de perigo do local de alimentação, do local de descarga do produto e do funil de descarga de resíduos devem observar ainda as distâncias de segurança conforme quadro I do item "A" do Anexo I da NR-12.
1.3.2.3.2. Se for utilizada esteira para a alimentação automática da máquina ou na saída do produto, deve ser utilizada proteção móvel intertravada ou fixa, conforme os itens 12.38 a 12.55 da NR-12, que impeça a acesso aos movimentos perigosos dos transportadores contínuos, especialmente nos pontos de esmagamento, agarramento e aprisionamento formados pelas esteiras, correias, roletes, acoplamentos e outras partes móveis acessíveis durante a operação normal.
1.3.2.4. O acesso às partes móveis e transmissões de força deve ser impedido em todas as faces por meio de proteção móvel intertravada ou fixa, conforme os itens 12.38 a 12.55 da NR-12.
1.3.3 O sistema de segurança e suas interligações devem atingir no mínimo categoria de segurança 3. (Redação dada pela Portaria MTB Nº 99 DE 08/02/2018).
1.3.4. A altura "H" deve ser de 1050 mm se a altura de alimentação da máquina (plano de trabalho) for fixa.
1.3.4.1. Quando a altura de alimentação for regulável, a altura "H" deve permitir ajuste entre 850 mm a 1120 mm.
1.3.4.2. A altura "H" fora do padrão estabelecido nos itens 1.3.4 e 1.3.4.1 deste anexo, só poderá ser adotada através de uma análise ergonômica do trabalho (AET) do posto de trabalho.
1.3.5. Nas máquinas móveis que possuem rodízios, pelo menos dois deles devem possuir travas.
1.3.6. Os componentes elétricos devem atender ao grau de proteção (IP), de acordo com as normas técnicas oficiais vigentes à época de publicação deste anexo.
1.3.6.1. Quando utilizado jato de pressão de água para higienização da máquina, devem ser adotadas medidas adicionais para proteger componentes elétricos externos.
1.3.7. A máquina deve ser equipada com um dispositivo de parada de emergência, de forma que sua disposição permita o acionamento da parada de emergência dentro da área de alcance do operador.
1.3.7.1. O dispositivo de parada de emergência deve atender ao disposto na NR-12.
Disposições transitórias
Nota LegisWeb: Ver Portaria MTPS Nº 511 DE 29/04/2016, que determina os prazos para implementação do disposto neste item quanto as máquinas de repasse de moela fabricadas antes de sua vigência.
1.3.8. As máquinas utilizadas para o repasse de moela fabricadas antes da vigência desta Portaria têm o prazo indicado no Art. 2º para se adequarem ao disposto no item 1.3 e seus subitens, podendo ser utilizadas nesse período desde que atendam aos requisitos indicados nos subitens de 1.3.8.1 a 1.3.8.6.
1.3.8.1. A operação da máquina de repasse de moela só pode ser realizada por trabalhador que não utilize luvas e jalecos de manga longa.
1.3.8.2. A máquina deve ser equipada com um dispositivo de parada de emergência, de forma que sua disposição permita o acionamento da parada de emergência dentro da área de alcance do operador.
1.3.8.2.1. O dispositivo de parada de emergência deve atender ao disposto na NR-12.
1.3.8.2.2. O movimento dos cilindros deve cessar totalmente em um período de até dois segundos após o acionamento do dispositivo de parada de emergência.
1.3.8.3. O ângulo das ranhuras dos cilindros deve ser de 60º e a distância livre entre dois cilindros não deve ultrapassar 0,4 mm.
1.3.8.4. As extremidades dos roletes devem ser dotadas de proteção que impeça o acesso de membros superiores nas zonas de preensão e esmagamento.
1.3.8.5. O acesso para limpeza dos cilindros deve ser impedido por meio de proteção móvel intertravada, monitorada por interface de segurança, conforme os itens 12.38 a 12.55 da NR-12.
1.3.8.6 O sistema de segurança e suas interligações devem atingir no mínimo categoria de segurança 3. (Redação dada pela Portaria MTB Nº 99 DE 08/02/2018).
(Item acrescentado pela Portaria MTB Nº 99 DE 08/02/2018):
1.4. A máquina serra de fita é definida para fins deste anexo como sendo aquela formada por uma mesa de alimentação fixa ou uma mesa de alimentação parcialmente deslizante ou um transportador com cilindros ou uma correia transportadora, com uma canaleta regulável deslizante, uma polia superior e uma polia inferior, uma fita de corte, uma guia superior e uma guia inferior para a fita de corte, um dispositivo para ajustar a tensão da fita de corte, um sistema motriz e componentes elétricos, dependendo da especificidade da máquina, com uma altura de corte de até 550 mm.
1.4.1 As máquinas às quais se aplicam esta norma são utilizadas para cortar:
a) ossos;
b) carnes com ou sem ossos;
c) peixes;
d) blocos de produtos alimentícios;
e) outros produtos cárneos.
1.4.2 Esta norma não se aplica à serra de fita de uso restrito a açougues, mercearias, bares e restaurantes, prevista no Anexo VII da NR-12.
1.4.3 Os perigos mecânicos e requisitos de segurança abrangidos neste anexo se referem ao tipo de máquina descrita no item 1.4, devendo ser realizada uma prévia avaliação de risco da máquina, após a sua instalação, longo período de inatividade ou quando ocorrer mudança do processo operacional, em relação ao trabalhador, para evitar riscos adicionais oriundos do processo e das condições do ambiente de trabalho.
1.4.4 São consideradas zonas de perigo, conforme a figura 1:
Legenda:
1- Zona 1- Parte da fita de corte coberta por canaleta regulável deslizante
2 - Zona 2- Área de corte
3 - Zona 3 - Polias inferior e superior
4 - Zona 4 - Fita de corte fora da área de corte
5 - Zona 5 - Mesa de alimentação (fixa e/ou parcialmente deslizante)
6 - Zona 6 - Unidade motriz
7 - Zona 7- Sistema de rodízio para facilitar o transporte.
H - Altura da mesa de trabalho em relação ao solo Figura 1 - Zonas de perigo da máquina serra de fita Fonte: Norma Técnica EN 12268:2014
1.4.5 O acesso a zona de perigo 1 deve possuir uma canaleta regulável deslizante, para enclausurar o perímetro da fita serrilhada na região de corte, liberando apenas a área mínima de fita serrilhada para operação.
1.4.6 O acesso à zona de perigo 2, área de corte da lâmina, deve ser impedido pela aplicação conjunta das seguintes medidas:
Nota LegisWeb: Item: 1.4.6, alínea "a" Prazo para empresas em geral: 6 meses; Prazo para micro e pequenas empresas: 12 meses exclusivamente para adequação das máquinas já em uso, que entrarão em vigor nos prazos consignados, contados da publicação.
a) limitar a distância das mãos do(s) operador(es) a no mínimo 20 cm da fita, por todos os lados;
b) não utilizar luvas de malha de aço, anticorte ou de material que possibilite agarramento;
c) quando utilizar vestimentas de manga longa na realização da atividade, esta deve ter fechamento no punho;
Nota LegisWeb: Item: 1.4.6, alínea "d" Prazo para empresas em geral: 12 meses; Prazo para micro e pequenas empresas: 18 meses exclusivamente para adequação das máquinas já em uso, que entrarão em vigor nos prazos consignados, contados da publicação.
d) adotar medidas para evitar o acesso de terceiros à zona de perigo 2, limitando-se o acesso apenas ao posto de trabalho do(s) operador(es) da máquina.
1.4.6.1 Os cortes que exijam distância inferior ao previsto na letra "a" do item 1.4.6, somente podem ser realizados com a utilização de dispositivo que proteja completamente as mãos do(s) operador(es).
1.4.6.1.1 O dispositivo para proteção, constituído por material resistente ao corte da serra, pode ser do tipo empurrador, anteparo físico ou outras alternativas, conforme exemplos das figuras 2, 3 e 4, que impeçam o contato das mãos com a fita de corte;
1.4.6.1.2 As soluções alternativas para proteção devem ser projetadas de modo a atingir o nível necessário de segurança previsto neste anexo.
1.4.6.2 Quando não for possível limitar o acesso por meio do posicionamento da máquina no ambiente ou da organização dos postos de trabalho, o acesso de terceiros (outras pessoas) à área de corte da lâmina deve estar protegido por meio de proteção fixa ou móvel intertravada, conforme os itens de 12.38 a 12.55 da NR-12.
Figura 2 - Exemplo de dispositivo para proteção da mão do trabalhador
Fonte: Arquivo da subcomissão de máquinas da CNTT da NR-36
Figura 3 - Exemplo de dispositivo para proteção da mão do trabalhador
Fonte: Reducing bandsaw accidents in the food industry. Guidance Note PM33 do HSE (Health and Safety Executive), 2000.
Figura 4 - Exemplo de dispositivo para proteção da mão do trabalhador
Fonte: Reducing bandsaw accidents in the food industry. Guidance Note PM33 do HSE (Health and Safety Executive), 2000.
1.4.7 O acesso à zona de perigo 3, polias inferior e superior e à zona de perigo 4, fita de corte fora da área de corte, deve ser impedido em todas as faces por meio de proteção móvel intertravada, conforme os itens 12.38 a 12.55 da NR-12.
1.4.8 Na zona de perigo 5, mesa de alimentação, quando utilizada a mesa parcialmente deslizante, esta deve ser projetada para impedir qualquer salto ou deslizamento para fora dos trilhos ou da guia.
1.4.9 O acesso à zona de perigo 6, unidade motriz, deve ser impedido por meio de proteção móvel intertravada ou fixa, conforme os itens 12.38 a 12.55 da NR-12, que impeça o acesso aos movimentos perigosos do sistema motriz durante a operação normal.
1.4.10 A máquina serra de fita com uma altura de corte maior do que 420 mm deve ser dotada de unidade de alimentação e de evacuação não automática, como por exemplo, transportador com cilindros, correia (cinta) transportadora, mesa deslizante, entre outros.
1.4.11 Devem ser adotadas medidas para impedir a passagem de pessoas e materiais no espaço imediatamente atrás do(s) operador(es) de modo a evitar seu deslocamento acidental durante a operação.
1.4.12 Nas máquinas móveis que possuem rodízios, pelo menos dois deles devem possuir travas.
1.4.13 A altura "H", a partir do solo até a superfície superior da mesa de alimentação deve estar entre 850 mm à 1120 mm.
1.4.13.1 A altura "H" fora do padrão estabelecido no item
1.4.10 deste anexo só pode ser adotada por meio de uma análise ergonômica do trabalho (AET) do posto de trabalho.
1.4.14 Os componentes elétricos devem atender ao grau de proteção (IP), de acordo com as normas técnicas oficiais vigentes à época de publicação deste anexo.
1.4.14.1 Quando utilizado jato de pressão de água para higienização da máquina devem ser adotadas medidas adicionais para proteger componentes elétricos externos.
1.4.15 A máquina deve ser equipada com um dispositivo de parada de emergência, de forma que sua disposição permita o acionamento da parada de emergência dentro da área de alcance do operador.
1.4.15.1 O dispositivo de parada de emergência deve atender ao disposto na NR-12.
1.4.16 O sistema de segurança e suas interligações devem atingir no mínimo categoria de segurança 3.
1.4.17 Os operadores da máquina serra de fita devem estar identificados durante seu turno de trabalho.
(Item acrescentado pela Portaria MTB Nº 1087 DE 18/12/2018):
1.5 A máquina para corte de carcaças de animais de médio e grande porte é definida para fins deste anexo como a máquina com discos giratórios utilizados para a segregação de carcaças tais como pernil, carré, sobre paleta ou outros e dotada de esteira transportadora automática, conforme exemplificado na Figura 1 (a figura é meramente ilustrativa, para fins de demonstração das partes da máquina).
1.5.1 A máquina deve ser utilizada dentro dos limites estabelecidos no manual de instruções do fabricante.
Figura 1 - Módulo da máquina para corte de carcaças de animais de médio e grande porte
Legenda:
1 - Proteção externa fixa ou móvel da área de corte;
2 - Esteira transportadora de alimentação (entrada de produtos);
3 - Esteira transportadora de descarga (saída de produtos);
4 - Proteção fixa ou móvel do sistema motriz;
5 - Disco de corte;
6 - Proteção fixa do eixo de transmissão do sistema motriz.
1.5.2 Os perigos mecânicos (Figura 2) e os requisitos de segurança abrangidos neste anexo se referem ao tipo de máquina descrita no item 1.5 e seus limites de aplicação.
1.5.3 Deve ser realizada uma prévia avaliação de risco da máquina, após a sua instalação, longo período de inatividade ou quando ocorrer mudança do processo operacional, em relação ao trabalhador, para evitar riscos adicionais oriundos do processo e das condições do ambiente de trabalho.
Figura 2 - Zonas de perigo da máquina para corte de carcaças de animais de médio e grande porte
Legenda:
1 - Zona de corte - alimentação;
2 - Zona de corte - descarga;
3 - Zona de movimentação do disco de corte;
4 - Zona motriz;
5 - Zona de transmissão;
6 - Zona de movimentação da esteira;
H - Altura da superfície da esteira transportadora de alimentação e de descarga, em relação ao solo.
1.5.4 O acesso à zona de perigo 1 (alimentação), zona de perigo 2 (descarga) e zona de perigo 3 (movimentação do disco de corte) deve ser impedido por meio de proteção fixa ou móvel intertravada monitorada por interface de segurança, conforme os itens 12.38 a 12.55 da NR-12.
1.5.4.1 Devem ser observadas as distâncias de segurança previstas no Quadro I do item A do Anexo I da NR-12 ou adotadas as seguintes medidas de proteção de forma conjunta:
a) instalar dispositivos de obstrução, constituídos por material rígido, para impedir o acesso inadvertido na zona de perigo 1 (alimentação), zona de perigo 2 (descarga) e zona de perigo 3 (movimentação do disco de corte), com as seguintes especificações:
I - dois dispositivos de obstrução basculantes frontais paralelos na face de entrada do corte (zona de perigo 1), que ofereçam resistência para evitar o contato acidental com o disco, com massa de no mínimo 2 kg cada um;
II - dispositivos de obstrução fixo na face de saída do corte (zona de perigo 2), que recubra o disco;
III - Vproteção fixa na zona de movimentação do disco de corte (zona de perigo 3), que recubra o disco;
b) atender a altura e as distâncias especificadas na figura 3 e na tabela 1:
Figura 3 - Dispositivos de obstrução e proteções internas e externas
Legenda:
1 - Dois dispositivos de obstrução frontais na face de entrada do corte. Tais dispositivos devem estar posicionados paralelamente, um de cada lado do disco de corte. A distância (fenda) entre os dispositivos basculantes deve ser de no máximo 12 mm;
2 - O dispositivo de obstrução na face de saída do corte deve possuir espessura igual ou maior que a espessura do disco de corte;
3 - Proteção fixa na zona de movimentação do disco de corte;
4 - Proteção externa fixa ou móvel da área de corte:
A - Altura da abertura na entrada e na saída de produtos;
B - Distância medida do ponto de intersecção do disco com a mesa, na zona de alimentação (pontoX), até o posto de trabalho junto à superfície que restringe o acesso do corpo ou parte deste;
C - Distância medida do ponto de intersecção do disco com a mesa, na zona de descarga (pontoY), até o posto de trabalho junto à superfície que restringe o acesso do corpo ou parte deste;
D - Distância (fenda) máxima entre o disco e o dispositivo de obstrução da parte traseira do disco;
E - Transposição mínima entre os dispositivos de obstrução basculantes frontais (1) e o disco de corte;
F - Distância mínima entre o disco de corte e o centro de gravidade dos dispositivos de obstrução basculantes (1) para garantir que tais dispositivos se mantenham sempre recobrindo o disco;
X - Ponto de intersecção do disco com a mesa, na zona de alimentação;
Y - Ponto de intersecção do disco com a mesa, na zona de descarga;
CG - Centro de gravidade dos dispositivos de obstrução basculantes frontais (1).
Tabela 1 - Medidas de altura e distâncias (medidas em milímetros)
| A | E | 320 |
| B | > = | 850 |
| C | > = | 550 |
| D | E | 5 |
| E | > = | 10 |
| F | > = | 65 |
1.5.4.1.1 Podem ser adotados outros dispositivos de obstrução, observados o item 12.5 e o subitem 12.38.1 da NR-12, desde que garantam a mesma eficácia dos mencionados neste item e atendam ao disposto nas normas técnicas oficiais vigentes tipos A e B e, na ausência dessas, normas internacionais ou europeias harmonizadas aplicáveis.
1.5.4.2 O movimento dos discos de corte deve cessar totalmente antes da abertura da proteção móvel intertravada.
1.5.4.3 Caso a proteção externa fixa ou móvel da área de corte seja aberta em sua face superior, devem ser observadas as distâncias de segurança previstas no Quadro II, do item A, do Anexo I, da NR-12.
1.5.5 O acesso à zona de perigo 4 (motriz) e zona de perigo 5 (transmissão) deve ser impedido em todas as faces por meio de proteção fixa ou móvel intertravada monitorada por interface de segurança, conforme os itens 12.38 a 12.55 da NR-12.
1.5.6 O acesso à zona de perigo 6 (movimentação da esteira) deve ser impedido por meio de proteção fixa ou móvel intertravada, monitorada por interface de segurança, conforme os itens 12.38 a 12.55 da NR-12, para que impeça o acesso aos movimentos perigosos dos transportadores contínuos, especialmente nos pontos de esmagamento, agarramento e aprisionamento formados pelas correias, roletes, acoplamentos, eixos de transmissão da esteira e outras partes móveis das esteiras acessíveis durante a operação normal.
1.5.7 As proteções móveis intertravadas devem ser projetadas de forma que possam ser movimentadas pelo trabalhador com uma força menor do que 50 N (newtons).
1.5.8 O sistema de segurança e suas interligações devem atingir no mínimo categoria de segurança 3.
1.5.9 Quando houver intervenção de trabalhadores na atividade, a altura "H", indicada na Figura 2, deve ser de 1000 mm, se a altura da esteira (plano de trabalho) for fixa.
1.5.9.1 Quando a altura da esteira for regulável, a altura "H" deve permitir ajuste entre 850 mm a 1120 mm.
1.5.9.2 A altura "H" fora do padrão estabelecido nos itens 1.5.9 e 1.5.9.1 deste anexo só poderá ser adotada por meio de uma Análise Ergonômica do Trabalho - AET do posto de trabalho.
1.5.10 Os componentes elétricos devem atender ao grau de proteção (IP), de acordo com as normas técnicas oficiais vigentes à época de publicação deste anexo.
1.5.10.1 Quando utilizado jato de pressão de água para higienização da máquina, devem ser adotadas medidas adicionais para proteger componentes elétricos externos.
1.5.11 A máquina deve ser equipada com um ou mais dispositivos de parada de emergência que permitam a interrupção de seu funcionamento a partir de qualquer um dos operadores em seus postos de trabalho.
1.5.11.1 O dispositivo de parada de emergência deve atender ao disposto na NR-12.